EasyManua.ls Logo

ElectroCraft IQ 2000 - IQ-2000 PDM-75 Mounting

ElectroCraft IQ 2000
120 pages
Print Icon
To Next Page IconTo Next Page
To Next Page IconTo Next Page
To Previous Page IconTo Previous Page
To Previous Page IconTo Previous Page
Loading...
Installation 2-11
IQ 2000/5000 Installation Manual
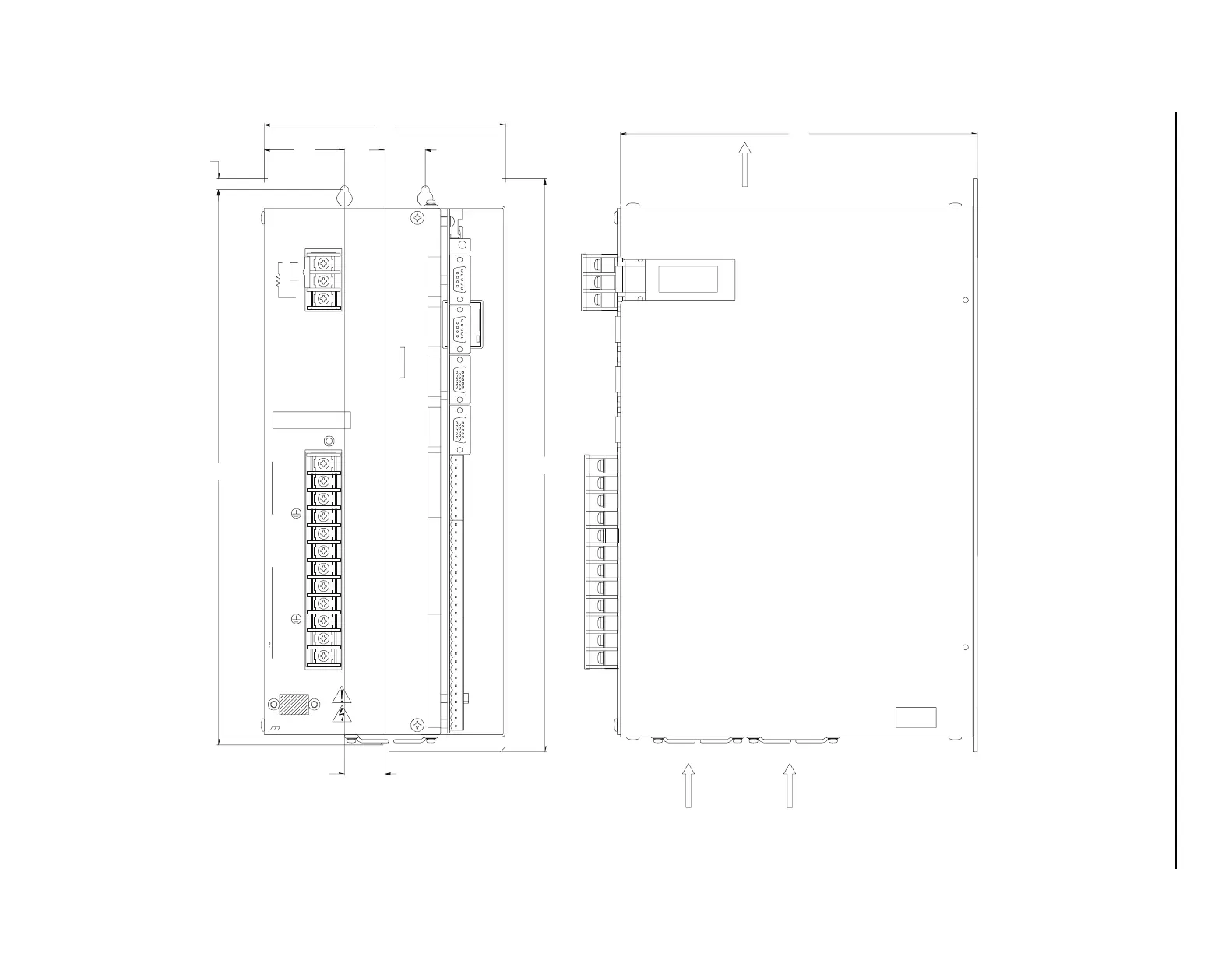
FIGURE 2.7 IQ-2000 PDM-75 Mounting
SW1
U10
AUXL2/N
L1 AUX
L1
L2/N
L3
DC BUS-
DC BUS+
DC BUS
MOTOR100-240 VAC 50/60 Hz
R
S
T
TB1
TB2
3
1
2
EXTERNAL SHUNT
INTERNAL
HIGH VOLTAGE
MAY EXIST UP TO EIGHT MINUTES
AFTER REMOVING POWER.
5
10
P1
DIGITAL INPUTS
1
P2
1
10
DIGITAL INPUTS AND OUTPUTS
P3
STATUS/ANALOG I/O
1
5
5
P4
ENCODER 2
AUXILIARY
P5
ENCODER 1
MOTOR
SERIAL 2
COMPUTER
P6
AUXILIARY
SERIAL 1
STATUS
P7
14.20
[360.7]
8.84
[224.5]
0.27
[7.0]
13.75
[349.3]
1.99
[50.5]
5.97
[151.7]
AIR INTAKE
AIR EXHAUST
AIR INTAKE
1.00
[25.4]
1.00
[25.4]
WARNING:
FINAL INSPECTION
1. ALLOW 2.00 (50.8mm) CLEARANCE ABOVE & BELOW UNIT FOR AIR FLOW.
2. ALLOW 3.00 (76.5mm) CLEARANCE IN FRONT OF UNIT FOR CABLES.
NOTES:

Table of Contents

Related product manuals