EasyManua.ls Logo

Emerson Commander SX - Foreword; Caution

Emerson Commander SX
140 pages
Print Icon
To Next Page IconTo Next Page
To Next Page IconTo Next Page
To Previous Page IconTo Previous Page
To Previous Page IconTo Previous Page
Loading...
4
ADVANCED USER GUIDE
Commander SX
IP66/Nema 4X variable speed drive
CONTROL TECHNIQUES
3854 en - 03.2008 / b
FOREWORD
CAUTION
This is the technical manual complementing installation and maintenance manual ref. 3840.
Before setting the drive parameters, it is essential to have strictly observed all instructions
relating to installation, connection and commissioning of the drive contained in document ref. 3840
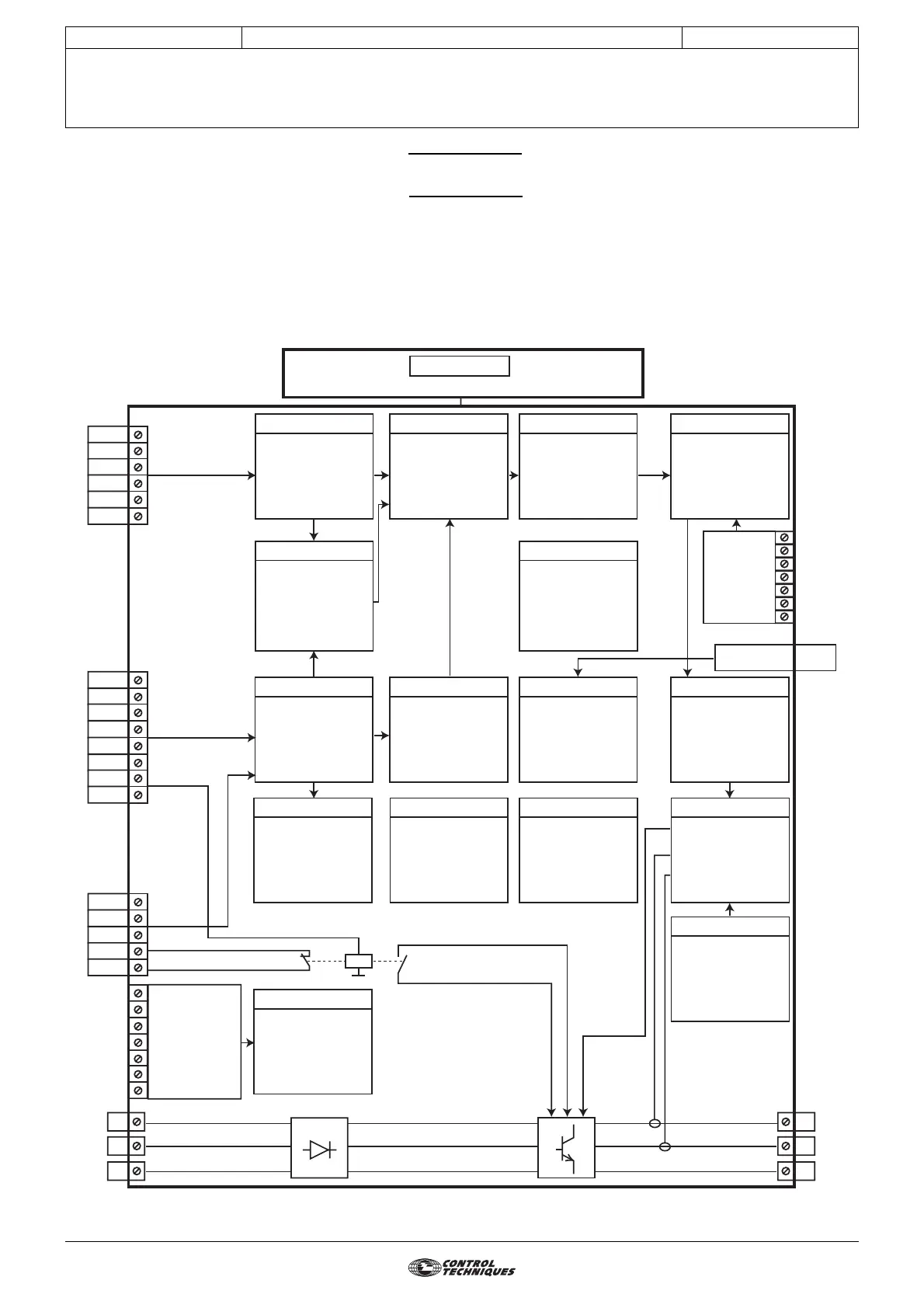
MENU ORGANISATION
U
V
W
MENU 14
PID controller
MENU 10
MENU 0
See installation and maintenance manual Ref. 3840
MENU 8
Configuration
of
digital I/O
MENU 6 MENU 11 MENU 4
Current
and torque
control
MENU 1
Speed
reference
and
limiting
MENU 7
Configuration
of
analog I/O
MENU 2
Ramps
MENU 3
Alarms, speed
thresholds,
encoder option
Motor control
(mode, switching
frequency,
characteristics)
MENU 9
Logic functions
(And, Or,
Motorised pot,
binary sum)
PLC functions
(Timing, latching,
upcounting/
downcounting)
MENU 12 MENU 16 MENU 5
Second
motor
parameters
MENU 21
Drive states
and
diagnostics
User menu,
serial link,
miscellaneous
Math functions,
threshold
detectors,
brake control
MENU 15
Configuration of
additional I/O
or Modbus RTU/
fieldbus
configuration
Programmable
logic, timers
L1
L2
L3
10V
ADI1
0V
ADI2
0V
ADIO3
DIO1
24V
DI2
DI3
24V
DI4
SDI1
SDI2
COM
RL1C
RL1O
SDO1
SDO2
Additional
I/O, fieldbus
or Modbus RTU
option
Encoder
option
serial link RJ45

Table of Contents

Related product manuals