EasyManua.ls Logo

GE RSTi-EP

GE RSTi-EP
425 pages
To Next Page IconTo Next Page
To Next Page IconTo Next Page
To Previous Page IconTo Previous Page
To Previous Page IconTo Previous Page
Loading...
Chapter 3: Configuration
GFK-2958E RSTi-EP User Manual 25
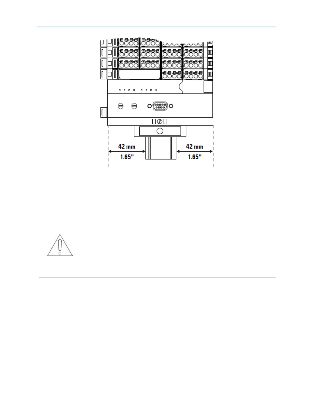
Installation Position of the RSTI-EP Station on the DIN Rail (Vertical Installation)
A RSTi-EP station may only be installed in this sequence (starting from the left/bottom):
End bracket
Network adapter
Up to 82 modules (including max. 64 active modules)
End plate and end bracket
Attention
A maximum of three passive modules (potential distribution module, power-
feed module or blank module) may be placed in successive positions. Then at
least one active module must follow.
3.1.1 Arrangement of Safe Power-feed Modules
A safe power-feed module EP-19xx module can be positioned anywhere in the RSTi-EP station. All the
following output modules (except for the EP-2814 and EP-2714 relay modules) up to the next EP-19xx
module are safely disconnected (safety segment). Multiple EP-19xx modules/safety segments can be
arranged within a station.
Note: When using RSTi-EP EP-19xx modules, also refer to the Modules for Functional Safety Manual
(GFK-2956).

Table of Contents

Other manuals for GE RSTi-EP

Related product manuals