EasyManua.ls Logo

GEDA 200Z - Anchoring and Spatial Requirement

GEDA 200Z
100 pages
Print Icon
To Next Page IconTo Next Page
To Next Page IconTo Next Page
To Previous Page IconTo Previous Page
To Previous Page IconTo Previous Page
Loading...
Rack and pinion hoist
Assembly and Operating Instructions
33 / 100 BL108 GB Edition 03.2018 Rev. 02
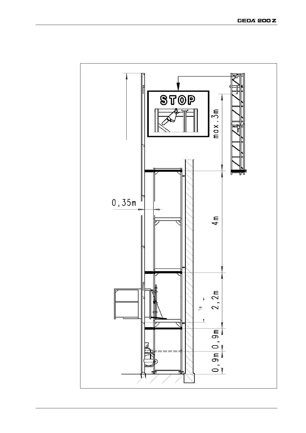
3.5 Anchoring and spatial requirement
max. 41 m

Table of Contents