EasyManua.ls Logo

HPE ProLiant DL385 Gen10 Plus

HPE ProLiant DL385 Gen10 Plus
170 pages
To Next Page IconTo Next Page
To Next Page IconTo Next Page
To Previous Page IconTo Previous Page
To Previous Page IconTo Previous Page
Loading...
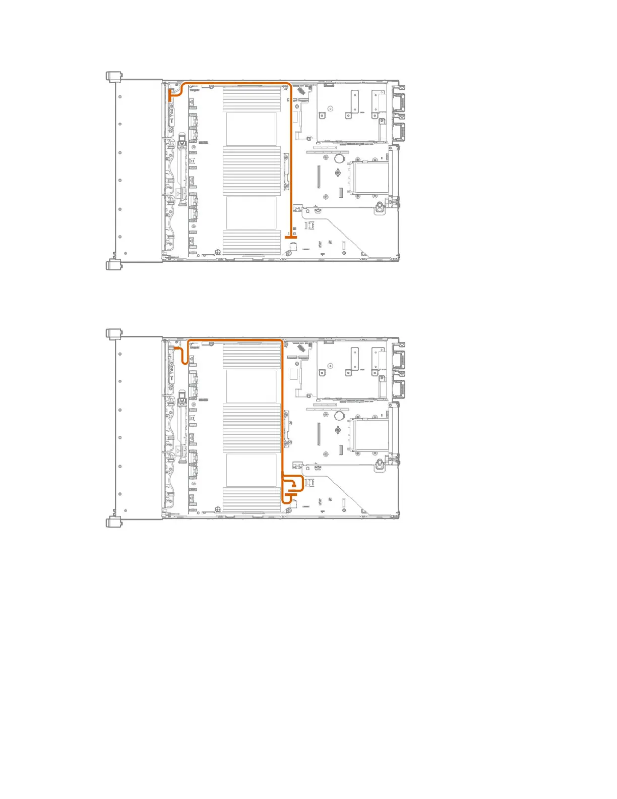
Cable routing: Universal Media Bay to SATA Port
Cable routing: 2 SFF Slim SAS Universal Media Bay in box 1 to system board
Cabling
129

Table of Contents

Related product manuals