EasyManua.ls Logo

HPE ProLiant DL385 Gen10 Plus

HPE ProLiant DL385 Gen10 Plus
170 pages
To Next Page IconTo Next Page
To Next Page IconTo Next Page
To Previous Page IconTo Previous Page
To Previous Page IconTo Previous Page
Loading...
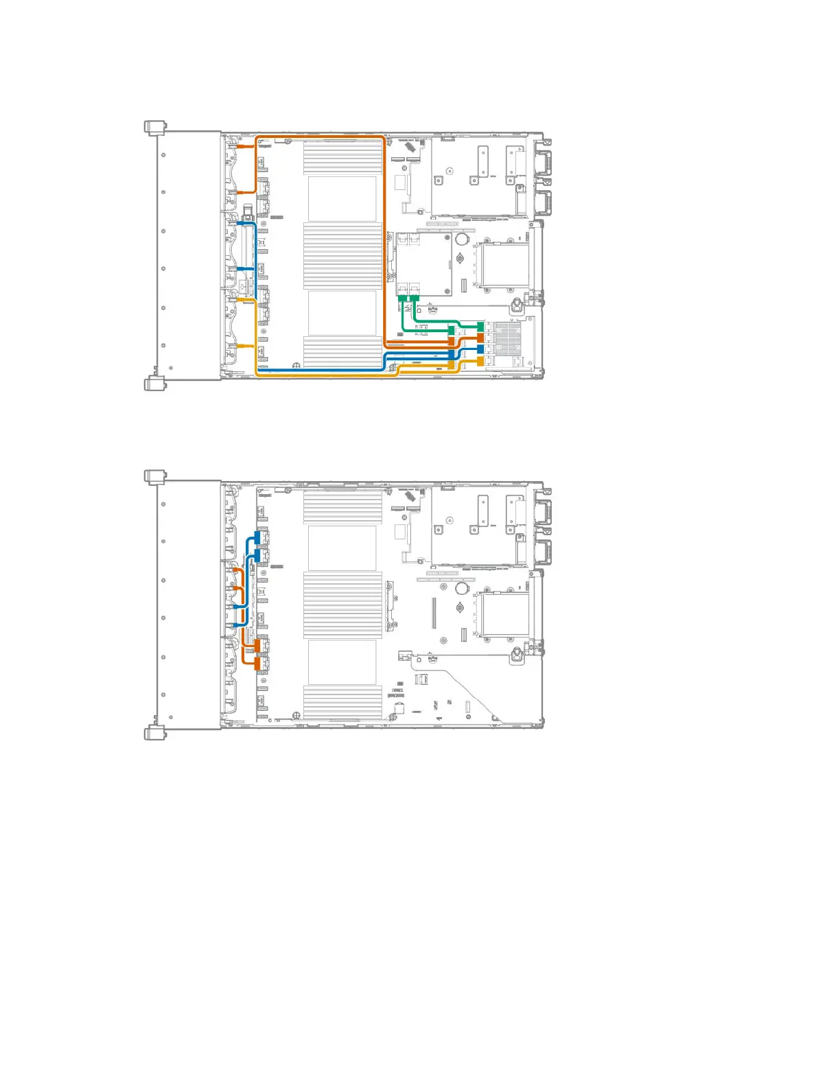
Cable routing: 24 SFF drive options (box 1, box 2, and box 3 to SAS expander card and
HPE Smart Array P816i-a SR Gen10 Controller, ports 1-2)
Cable routing: 8 NVMe Balanced Direct Solution
132
Cabling

Table of Contents

Related product manuals