EasyManua.ls Logo

HPE ProLiant DL385 Gen10 Plus

HPE ProLiant DL385 Gen10 Plus
170 pages
To Next Page IconTo Next Page
To Next Page IconTo Next Page
To Previous Page IconTo Previous Page
To Previous Page IconTo Previous Page
Loading...
Cable routing: Rear serial port interface (tertiary riser)
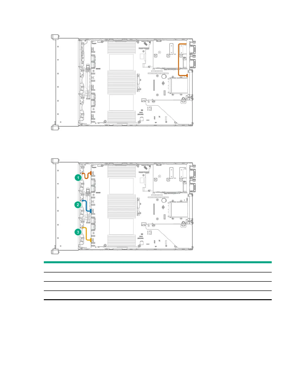
Cable routing: SFF backplane power cabling to the system board
Item Drive box
1 Box 1
2 Box 2
3 Box 3
140 Cabling

Table of Contents

Related product manuals