EasyManua.ls Logo

Huawei UPS5000-E-30 kVA - UPS Dimensions; Installation Environment

Huawei UPS5000-E-30 kVA
195 pages
Print Icon
To Next Page IconTo Next Page
To Next Page IconTo Next Page
To Previous Page IconTo Previous Page
To Previous Page IconTo Previous Page
Loading...
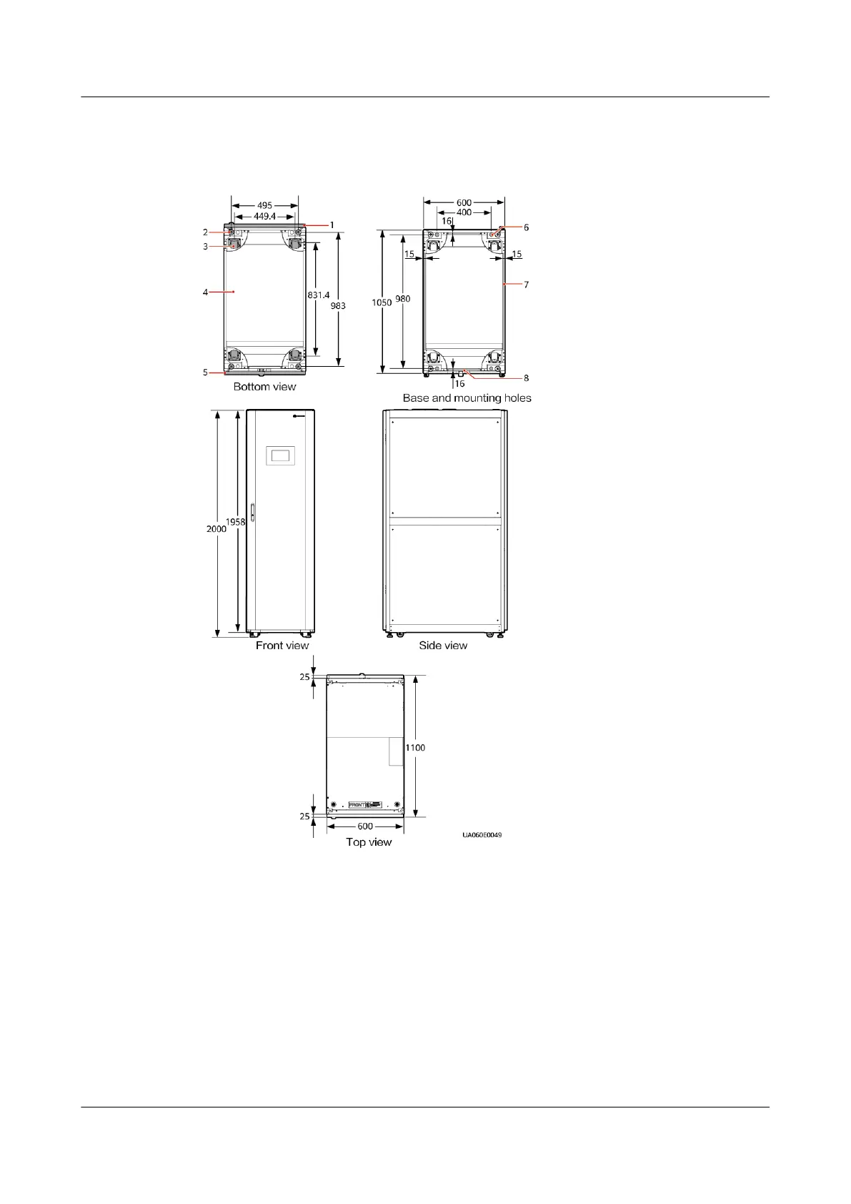
3.1.2.1 UPS Dimensions
Figure 3-1 Dimensions (unit: mm)
(1) Front door (2) Foot (3) Caster (4) Bottom panel
(5) Rear door (6) Base mounting
hole
(7) Side post (8) Beam
3.1.2.2 Installation Environment
Do not install the UPS in a high-temperature, low-temperature, or damp place
that is beyond the technical specications.
Keep the UPS far away from water, heat sources, and ammable and
explosive substances. Install the UPS in an environment free of dust, volatile
gas, salt, and corrosive materials. Avoid direct sunlight.
UPS5000-E-(30 kVA–180 kVA)
User Manual (Integrated UPS) 3 Installation
Issue 02 (2022-12-30) Copyright © Huawei Digital Power Technologies Co., Ltd. 49

Table of Contents

Related product manuals