EasyManua.ls Logo

Maxsine EP3 E Series - Drive Size

Default Icon
162 pages
Print Icon
To Next Page IconTo Next Page
To Next Page IconTo Next Page
To Previous Page IconTo Previous Page
To Previous Page IconTo Previous Page
Loading...
Chapter 8 Specifications
146
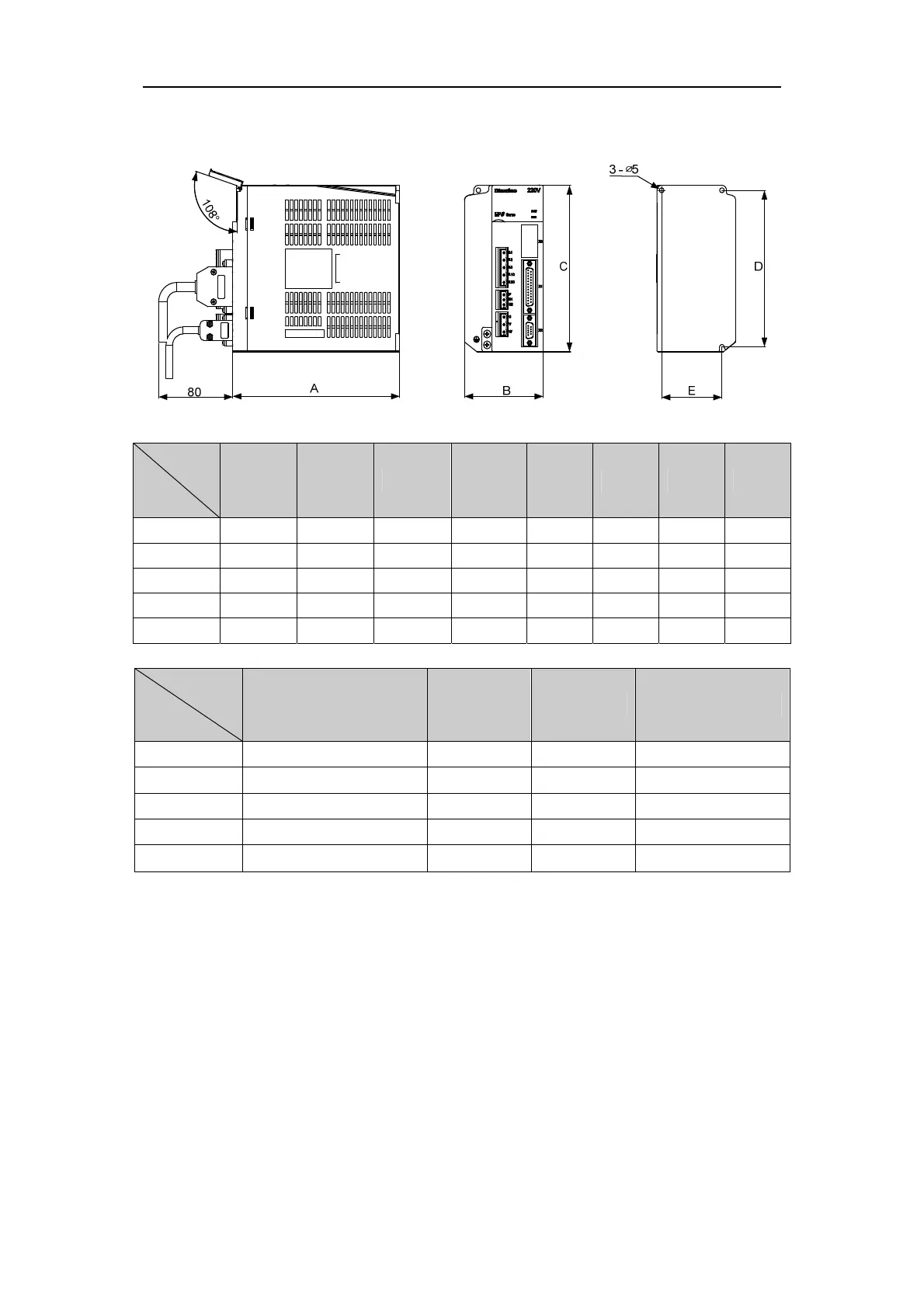
8.2
Drive size
Model
Size
mm
GL1A0
GL1A8/
GL3A0
GL5A5 GL7A5 GL120 GL160 GL190 GL240
A 150 150 180 180 180 180 180 210
B 55 65 75 85 95 95 105 115
C 168 168 168 168 168 200 220 250
D 158 158 158 158 158 189 209 239
E - 55 65 65 65 84 94 104
Model
Size
mm
GH2A0/GH3A5/GH5A4 GH8A5 GH130 GH170/GH210
A
180 180 180 210
B
95 95 105 115
C
168 200 220 250
D
158 189 209 239
E 65 84 94 104

Table of Contents