EasyManua.ls Logo

Mitsubishi MELSEC-Q QD77MS

Mitsubishi MELSEC-Q QD77MS
976 pages
To Next Page IconTo Next Page
To Next Page IconTo Next Page
To Previous Page IconTo Previous Page
To Previous Page IconTo Previous Page
Loading...
5 - 133
Chapter 5 Data Used for Positioning Control
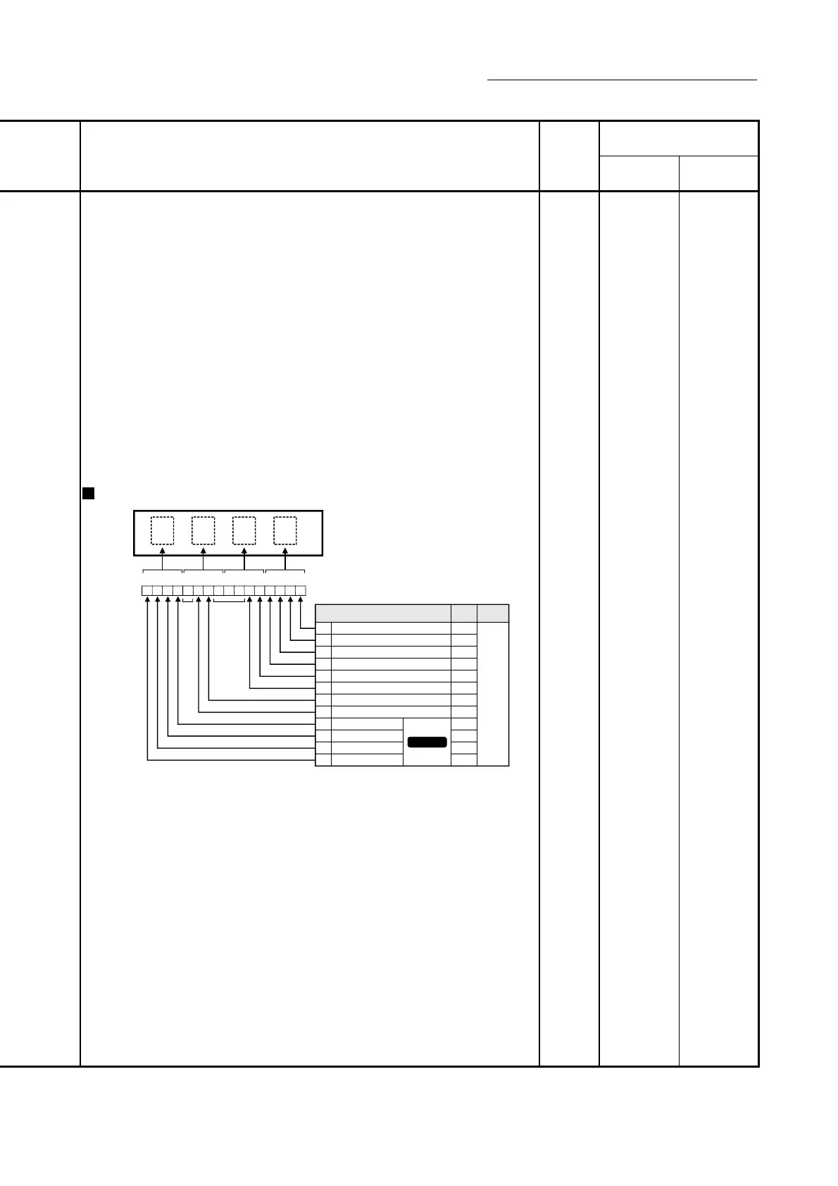
Storage buffer
memory address
Reading the monitor value
Default
value
QD77MS2
QD77MS4
QD77MS16
Monitoring is carried out with a hexadecimal display.
0000000000001000
b15 b0b4b8b12
0
0
0
1
0
0
0
0
0: OFF
1: ON
b0
b1
b2
b3
b4
b5
b9
b10
Monitor
value
Buffer
memory
Not
used
Stored items Meaning
Not used
In speed control flag
Speed-position switching latch flag
Command in-position flag
OPR request flag
OPR complete flag
Axis warning detection
Speed change 0 flag
Position-speed switching latch flag
0008
Default
value
b12
b13
b14
b15
M code ON
Error detection
Start complete
Positioning complete
0
0
0
0
QD77MS16
0008H 817+100n 2417+100n
n: Axis No.-1

Table of Contents

Related product manuals