EasyManua.ls Logo

Mitsubishi MELSEC-Q QD77MS

Mitsubishi MELSEC-Q QD77MS
976 pages
To Next Page IconTo Next Page
To Next Page IconTo Next Page
To Previous Page IconTo Previous Page
To Previous Page IconTo Previous Page
Loading...
6 - 41
Chapter 6 Sequence Program Used for Positioning Control
Position
ing star
t comman
d storag
*<Positioning start command storag >
*<Positioning start command pulse >
*<Positioning start command storag >
Position
ing star
t comman
d pulse
Position
ing star
t signal
Start co
mplete s
ignal
M code O
N signal
In-JOG/i
nching o
peration
flag
*<Setting of Positioning start No. >
*<Positioning start execution >
*<Positioning start command storag >
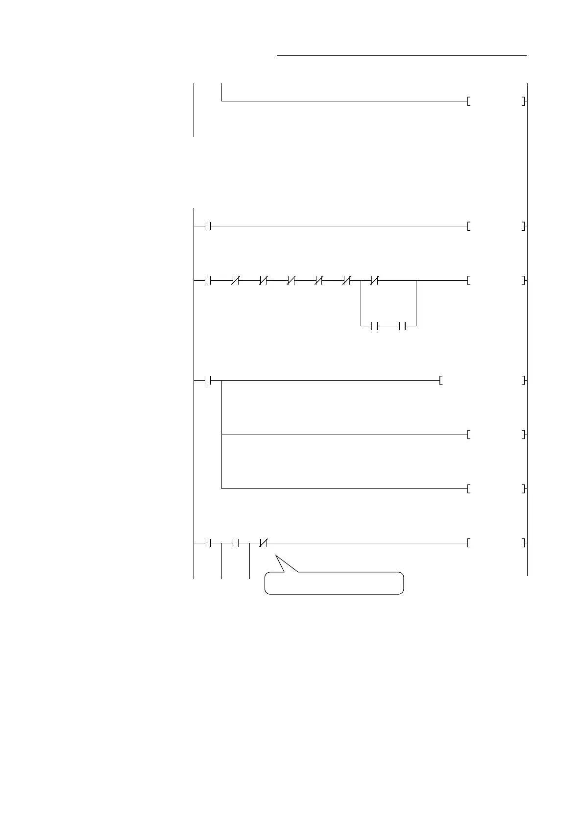
Use the direct access input as BUSY signal
to use this program example.
*<Positioning start signal OFF >
PLS
M5
X4E
Position
ing star
t comman
d
930
SET M6
M5
944
Y10 X10 X4 M7
M3 M4
M3
M6
957
*
*(2) When positioning start signal [Y10] is used
* (When fast OPR is not made, contacts of M5 and M6 are not
* needed)
* (When M code is not used, contact of X04 is not needed)
* (When JOG operation/inching operation is not perfomed,
* contact of M7 is not needed)
* (When manual pulse generator is not performed, contacts of
* M9 is not needed)
*
RST M6
SET Y10
RST M6
Y10
967
RST Y10
Position
ing star
t comman
d storag
Position
ing star
t comman
d pulse
Position
ing star
t comman
d storag
MOVP D32
U0\
G1500
Position
ing star
t No.
Position
ing star
t signal
Position
ing star
t comman
d storag
Position
ing star
t signal
Start No
.
Position
ing star
t signal
Start co
mplete s
ignal
BUSY sig
nal (Axi
s 1)
X10 DX0C
M9
Manual p
ulse gen
erater o
peration
Fast OPR
command
Fast OPR
command
Fast OPR
command
hold

Table of Contents

Related product manuals