EasyManua.ls Logo

Omron SYSDRIVE 3G3MV - Page 39

Omron SYSDRIVE 3G3MV
348 pages
Print Icon
To Next Page IconTo Next Page
To Next Page IconTo Next Page
To Previous Page IconTo Previous Page
To Previous Page IconTo Previous Page
Loading...
2-16
Symbol Name Specification
Out-
put
MA Multi-function contact
output (Normally open:
During operation)
Relay output
1 A max. at 30 V DC
1 A max. at 250 V AC
MB Multi-function contact
output (Normally
closed:
During operation)
1
A
m
a
x
.
a
t
2
5
0
V
A
C
MC Multi-function contact
output common
P1 Multi-function photo-
coupler output 1
(Fault)
Open collector output 50 mA max.
at 48 V DC
P2 Multi-function photo-
coupler output 2
(Fault)
PC Multi-function photo-
coupler output com-
mon
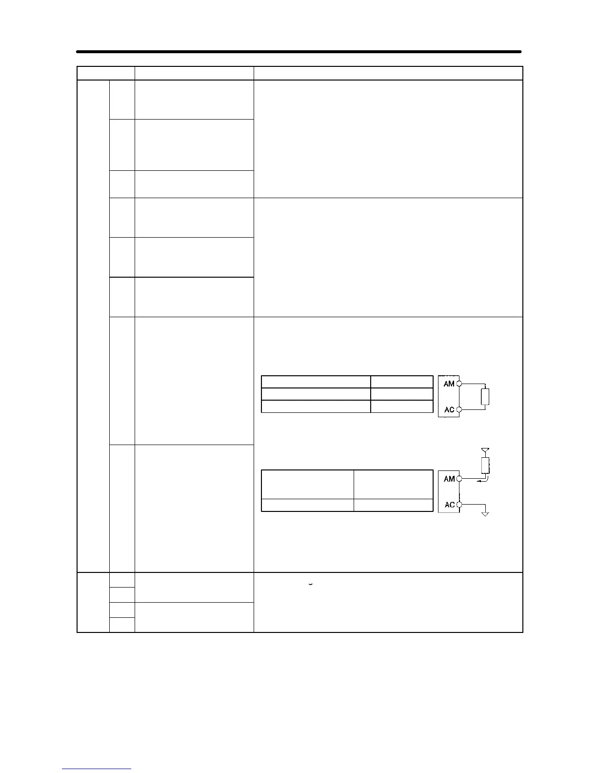
AM Multi-function analog
output
· Analog output: 2 mA max. at 0 to 10 V DC
· Pulse train output (max. output voltage: 12 V DC)
(See note 4.)
When Used as Voltage Output
Load impedance
1.5 kW min.
10 kW min.
Output voltage (insulation type)
+5 V
+10 V
Load
imped-
ance
External
p
o
w
e
r
AC Multi-function analog
output common
When External Power Supply is Used
Note Donot usea 5-VDC or 24-VDC external power
supply.Doing socan causeinternal circuitdam-
age or malfunctioning.
Input current (mA)
from external power
supply
16 mA max.
External power supply (V)
12 V DC (±5%)
E
x
t
e
r
n
a
l
power
supply
12 V DC
Load
imped-
ance
Input cur-
rent
16 mA
max.
External power
supply ground
Com-
m
u
-
R+
Receiver side Conforming to RS-422/485
C
o
m
-
mu-
n
ic
a
-
R--
R
e
c
e
i
v
e
r
s
i
d
e
C
o
n
f
o
r
m
i
n
g
t
o
R
S
-
4
2
2
/
4
8
5
n
ic
a
-
t
io
n
s
S+
Sender side
t
io
n
s
S--
S
e
n
d
e
r
s
i
d
e
Design Chapter 2

Table of Contents

Other manuals for Omron SYSDRIVE 3G3MV

Related product manuals