EasyManua.ls Logo

Pitney Bowes SendPro C - Page 212

Pitney Bowes SendPro C
226 pages
Print Icon
To Next Page IconTo Next Page
To Next Page IconTo Next Page
To Previous Page IconTo Previous Page
To Previous Page IconTo Previous Page
Loading...
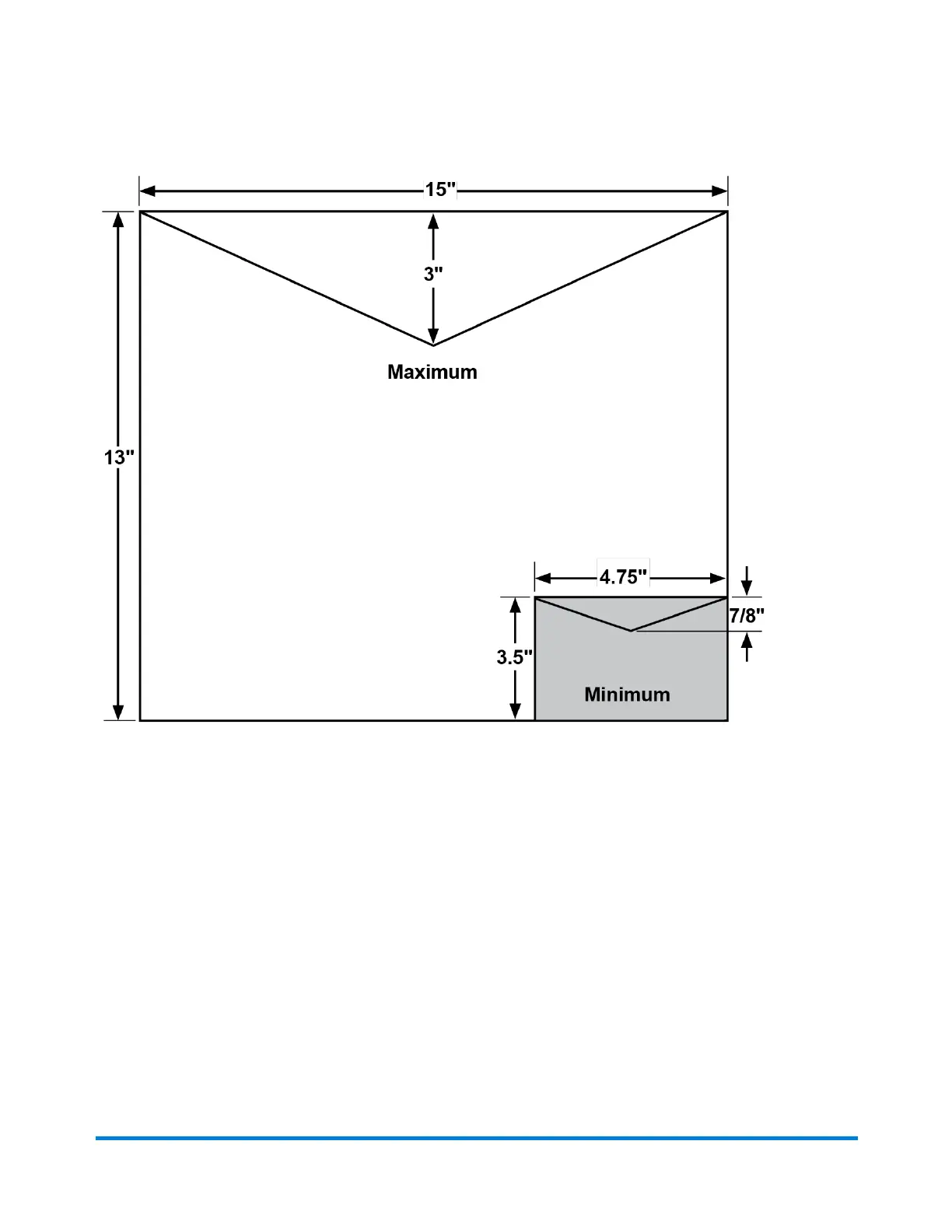
For a proper seal, the envelope’s minimum flap angle must meet the following criteria:
l
For envelopes with a flap length from 1-2.36 in, the minimum flap angle is 18 degrees.
l
For envelopes with a flap length greater than 2.36 in to the maximum flap length for the
particular model, the minimum flap angle is 21 degrees.
Device Information
Pitney Bowes Operator Guide April 2022 212

Table of Contents

Other manuals for Pitney Bowes SendPro C

Related product manuals