EasyManua.ls Logo

RHOSS ELECTA Series - Page 141

RHOSS ELECTA Series
Print Icon
To Next Page IconTo Next Page
To Next Page IconTo Next Page
To Previous Page IconTo Previous Page
To Previous Page IconTo Previous Page
Loading...
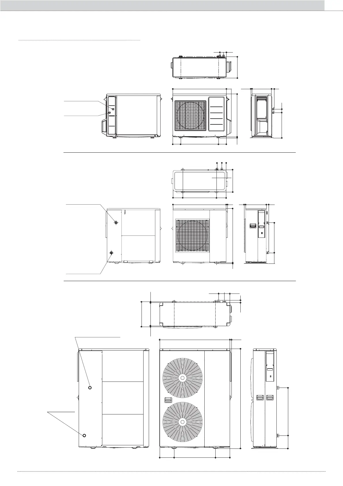
9.2 DIMENSIONS ET ENCOMBREMENTS
327
57
388 54
30015.3 42
825 73
16 659
580
122.5
122.5
43
86616
850 21
25 330 38
480173
155540155
75 70
357
680185
36
356
13 330 13
80 80
241000
1418
205590205
THAITY 105
THAITY 116
THAITY 110
Raccord de retour 3/4"
Raccord de refoulement 1"
Raccord de refoulement 1" 1/4
Raccord de
retour 1" 1/4
Raccord de retour 1"
Raccord de refoulement 3/4"
141
Section II :: Installation et entretien
FR

Table of Contents

Related product manuals