EasyManua.ls Logo

Siemens 6RA7086-6KS22

Siemens 6RA7086-6KS22
734 pages
To Next Page IconTo Next Page
To Next Page IconTo Next Page
To Previous Page IconTo Previous Page
To Previous Page IconTo Previous Page
Loading...
Function diagrams 05.05
8-24 SIEMENS AG 6RX1700-0AD76
SIMOREG DC Master Operating Instructions
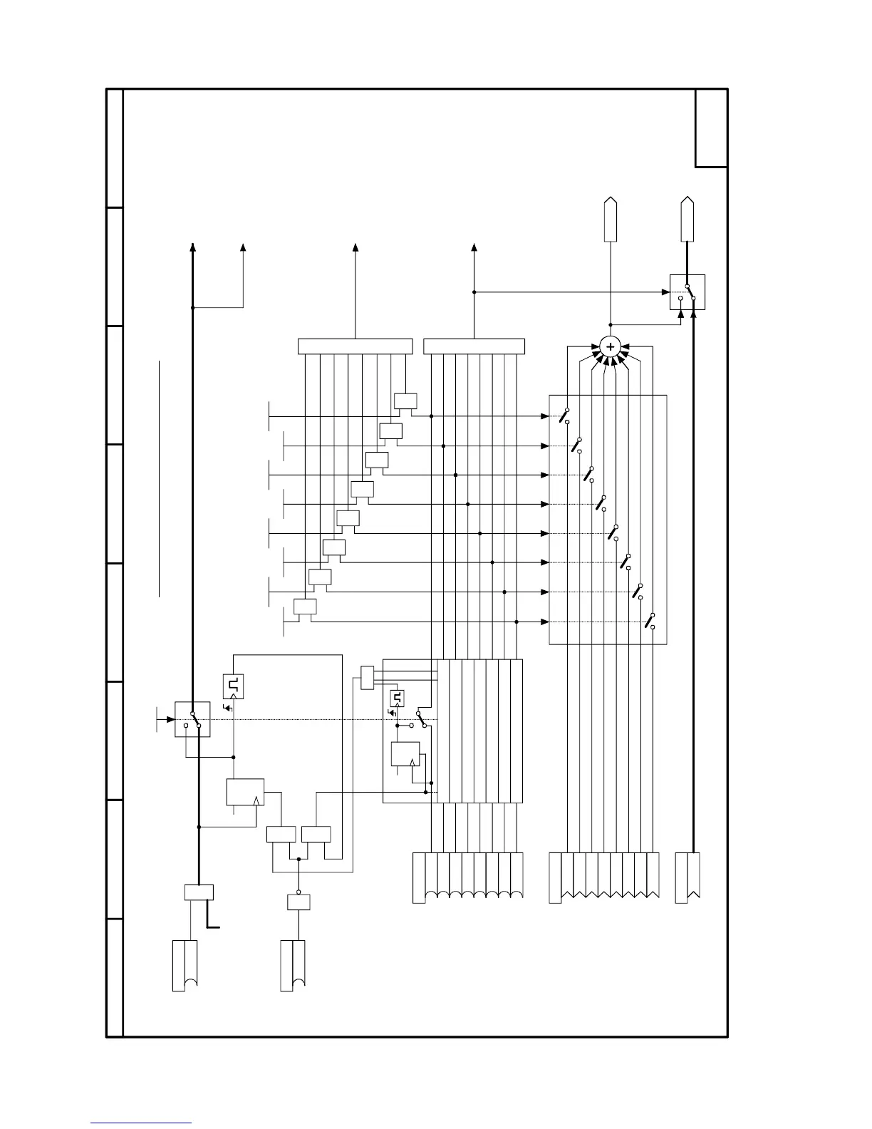
Sheet G130 Crawling setpoint / terminal 37
8
7
564321
.01
.02
.03
.04
.06
.07
.08
.05
.01
.02
.03
.04
.06
.07
.08
.05
1
0
1
0
1
0
1
0
1
0
1
0
1
0
1
0
1
0
1
&
&
&
&
&
&
&
&
1
DQ
R
1
1
1
0
<1>
&
D
Q
R
1
1
1
1
0
1
....
<1>
- G130 -
[G110.5]
[G180.2]
[G129.6]
[G180.2]
[G136.4]
[G129.7]
[G135.1]
P440 (0)
B
B
B
B
B
B
B
B
P441 (0)
K
K
K
K
K
K
K
K
P443.F(207)
K
K0206
P442.08
P442.07
P442.06
P442.05
P442.04
P442.03
P442.02
P442.01
P444.B (0)
B
P445
P654.B (1)
B
K0201
Crawling setpoint / Terminal 37
Select
injection of
crawling setpoint
Select
crawling setpoint
Selection
for shutdown
Level/edge
<1> Flip-Flops are reset when P445=0
Selection for
switch-on/shutdown
Switch-on/shutdown
from terminal 37
(from Sheet "Binary inputs 1")
ON command from
CRAWL
(to control word 1)
Switch-on command
from ON/OFF1
(to control word 1)
to sheet
"Ramp-function generator"
Bypass ramp-function generator
to sheet "Ramp-function generator"

Table of Contents

Related product manuals