EasyManua.ls Logo

Siemens 6RA7086-6KS22

Siemens 6RA7086-6KS22
734 pages
To Next Page IconTo Next Page
To Next Page IconTo Next Page
To Previous Page IconTo Previous Page
To Previous Page IconTo Previous Page
Loading...
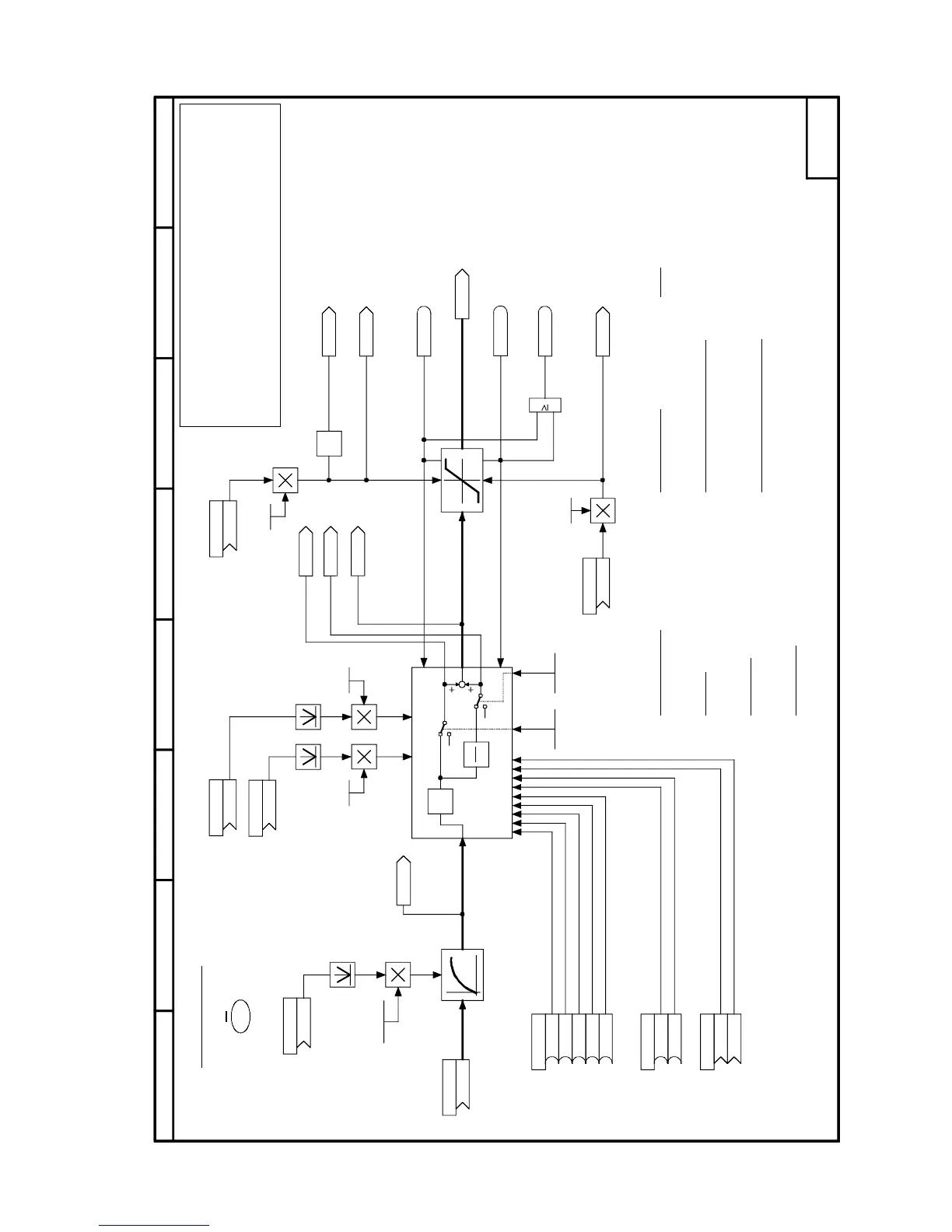
05.05 Function diagrams
SIEMENS AG 6RX1700-0AD76 8-93
SIMOREG DC Master Operating Instructions
Sheet B184 PI controller 5
87564321
Kp Tn
-1
*
Kp
1
sTn
0
0
1
0
0
1
1
X
Y
U530 (0)
K
U533 (0)
K
U542 (1)
K
U536 (1)
K
K
U531 (0)
B
U532 (0)
B
U538 (1)
K
U534 (1)
K
T1
B
B
K
B
B
B
264
K9340
U535.05 (0 ms)
.05
.05
5
.05
.05
.15
.15
.05
.15
.25
.35
.45
U539.05
(3,000 s)
U537.05
(3,00)
U540.05 (1) U541.05 (1)
.05
.05
K9341
K9342
U543.05
(100,0)
K9346
K9345
K9343
.05
B9664
(K9345)
U545.05
(100,0)
U544 (9346)
K9344
K9347
B9654
.05
B9674
(K9347)
- B184 -
PI-controller
PI-controller
Transfer function:
1 1 + sTn
G(s) = --------- * Kp * ---------
1 + sT1 sTn
P component
I component
0 = Reset P
component
0 = Reset I
component
Positive limit
Negative limit
Controller at
output limit
Enable PI-controller
Filter time
Set PI-controller
1 = set I component <4>
setting value for I component
1 = set output <2>
0 = disable PI-controller <1>
1 = freeze I component <5>
setting value for PI-controller output
<1>
disable PI-controller:
P component = 0
I component = 0
output = 0
<2>
set output:
P component active
I component = setting value - P component
output = setting value
<3>
freeze output:
P component active
I component = frozen output - P component
output is frozen
<4>
set I component:
P component active
I component = setting value
output = P component + I component
1 = freeze output <3>
Priority:
1. disable PI-controller
2. set output
3. freeze output
4. set I component
5. freeze I component
6. freeze I component in pos. direction
7. freeze I component in neg. direction
1 = freeze I comp. in pos. direction <6>
1 = freeze I comp. in neg. direction <7>
PI-controller output
Stop I component in
pos.direction and limit
it to positive limit
Controller at pos.
output limit
Controller at neg.
output limit
<5> freeze I component:
P component active
I component is frozen
output = P component + I component
<6>
freeze I component in pos. direction:
P component active
if controller input (X) is positive,
I component is frozen
output = P component + I component
<7>
freeze I component in neg. direction:
P component active
if controller input (X) is negative,
I component is frozen
output = P component + I component
Stop I component in
neg.direction and limit
it to negative limit

Table of Contents

Related product manuals