EasyManua.ls Logo

Siemens 6RA7086-6KS22

Siemens 6RA7086-6KS22
734 pages
To Next Page IconTo Next Page
To Next Page IconTo Next Page
To Previous Page IconTo Previous Page
To Previous Page IconTo Previous Page
Loading...
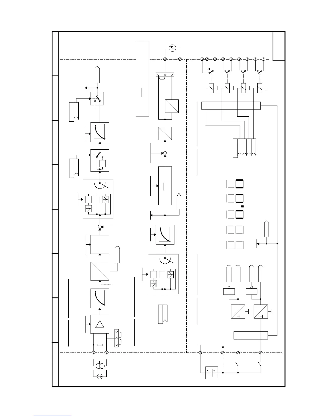
05.05 Function diagrams
SIEMENS AG 6RX1700-0AD76 8-121
SIMOREG DC Master Operating Instructions
Sheet Z119 2
nd
EB2: Analog input, Analog output, 2 digital inputs, 4 relay outputs
8
7
564321
i
±10V
u
± 20mA
0
1
U776.2
100%
*
10V =100%
20mA=100%
-1
-1
1
2
3
0
-1
0%
1
0
49
50
(|i|
2mA)
- Z119 -
123
X498
x
y
y [V] =
*
x
100%
47
U786.2
-1
-1
1
2
3
0
1
2
3
I
U
1
24V
5V
53
1
24V
5V
54
2
0
2
1
24V
51
52
41 39 54 5345 43
.05
.06
.07
.08
2
2
2
3
2
4
2
5
48
38
39
40
46
45
44
43
42
41
X499
DI1
DI2
AI
AO
DO1
DO2
DO3
DO4
-100,00...100,00%
U777.2 (0,00)
U778.2 (0)
0...10000ms
U780.2 (0)
-1000,0...1000,0
U776.2(100,0)
n782.2
K5211
U781.2 (1)
B
U779.2 (0)
B
B5221
(0/1=10V/20mA)
U775.2 (0)
20mA 10V
U784.2 (0)
K5212
U783.2 (0)
K
U785.2 (0)
(0...10000ms) -200,00...+199,99V
U786.2 (10,00)
-10,00...+10,00V
U787.2 (0,00)
n788.2
Uout = -10V...+10V
Iout =
-20...+20mA
B5222
B5223
B5224
B5225
P24_aux
U774 (0)
B
B
B
B
K5213
n773.2
Standardization
Offset
Sign reversal
Analog input
connection
Open circuit
Hardware
smoothing 220 µs
Signal type
Time constant
Smoothing
Analog inputs (differential input)
2nd EB2:
Analog output2nd EB2:
M_external
M_external
M_external
Display of terminal states in n773.2 an der PMU
2nd EB2: 2 digital inputs 2nd EB2: 4 Relay outputs
Time constant
Standardization
Offset
9 bits + sign
100%
Uout [V] =
K5212
* Standardization [V] + Offset [V]
11 Bit + VZ
Smoothing
A
D
A
D

Table of Contents

Related product manuals