EasyManua.ls Logo

Siemens 6RA7086-6KS22

Siemens 6RA7086-6KS22
734 pages
To Next Page IconTo Next Page
To Next Page IconTo Next Page
To Previous Page IconTo Previous Page
To Previous Page IconTo Previous Page
Loading...
Function diagrams 05.05
8-128 SIEMENS AG 6RX1700-0AD76
SIMOREG DC Master Operating Instructions
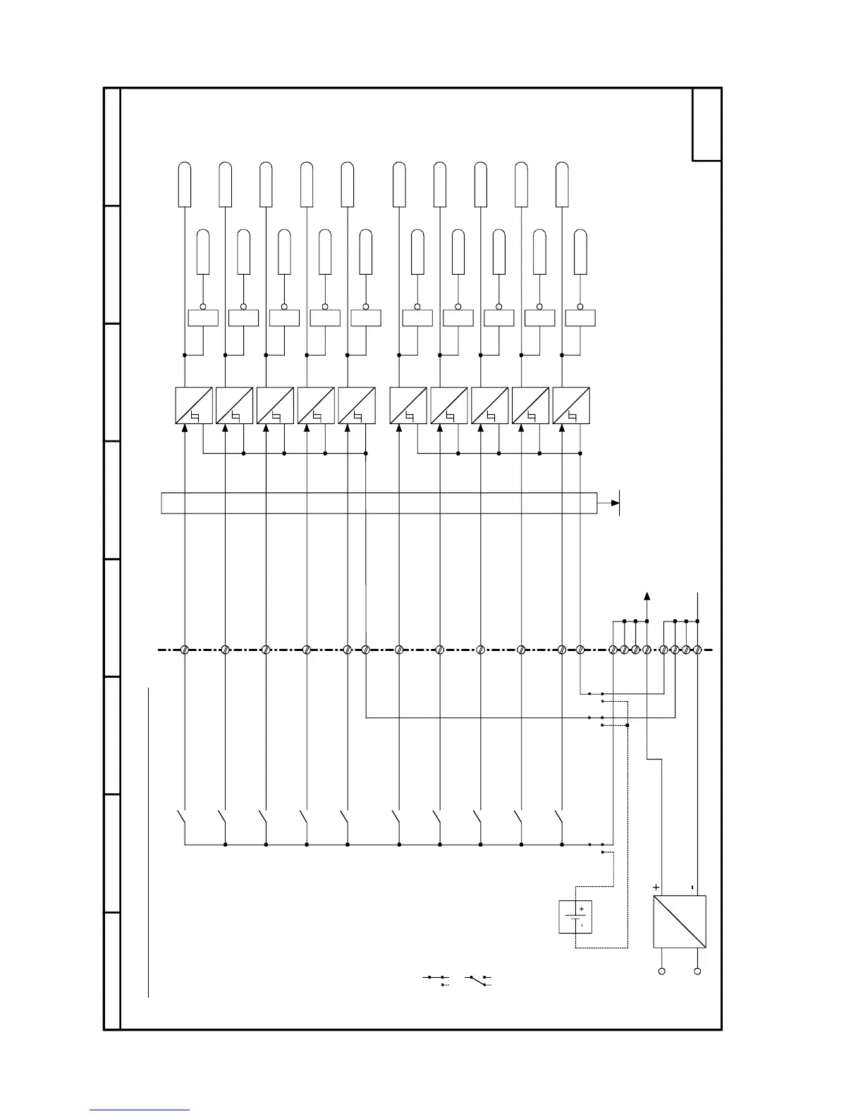
Sheet Z131 SCB1 with SCI1 as slave 2: binary inputs
87564321
- Z131 -
1
24V
5V
1
24V
5V
124V
5V
1
24V
5V
124V
5V
1
24V
5V
124V
5V
1
24V
5V
124V
5V
1
24V
5V
2
0
2
1
2
2
2
3
2
4
2
5
2
6
2
7
2
8
2
9
B3
B4
B5
B6
B7
B8
A3
A4
A5
A6
A7
A8
A1
B9
B10
B11
A2
A9
A10
A11
24V DC
~
~
P24
M
~
~
24V
<1>
<1>
<1>
X427
B4200
B4220
B4201
B4221
B4202
B4222
B4203
B4223
B4204
B4224
B4205
B4206
B4207
B4208
B4209
B4225
B4226
B4227
B4228
B4229
n699.05
Supply for the
SCI1 board
= Supply of binary
inputs via SCI1
= external supply of
binary inputs
Reference point for
binary inputs 1 to 5
Reference point for
binary inputs 6 to 10
SCB1 with SCI1 as slave 2: binary inputs
SCI slave 2
Binary input 1
Binary input 2
Binary input 3
Binary input 4
Binary input 5
Binary input 6
Binary input 7
Binary input 8
Binary input 9
Binary input 10
Supply for
binary inputs
(optional)

Table of Contents

Related product manuals