EasyManua.ls Logo

Siemens 6RA7086-6KS22

Siemens 6RA7086-6KS22
734 pages
To Next Page IconTo Next Page
To Next Page IconTo Next Page
To Previous Page IconTo Previous Page
To Previous Page IconTo Previous Page
Loading...
05.05 Function diagrams
SIEMENS AG 6RX1700-0AD76 8-127
SIMOREG DC Master Operating Instructions
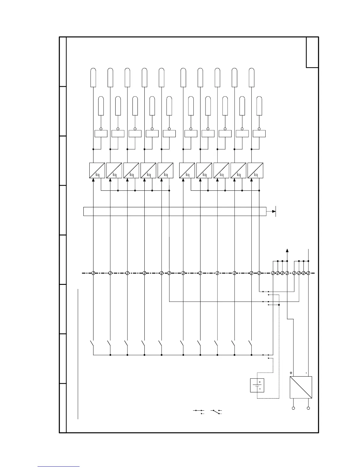
Sheet Z130 SCB1 with SCI1 as slave 1: binary inputs
87564321
- Z130 -
1
24V
5V
1
24V
5V
124V
5V
1
24V
5V
124V
5V
1
24V
5V
124V
5V
1
24V
5V
124V
5V
1
24V
5V
2
0
2
1
2
2
2
3
2
4
2
5
2
6
2
7
2
8
2
9
B3
B4
B5
B6
B7
B8
A3
A4
A5
A6
A7
A8
A1
B9
B10
B11
A2
A9
A10
A11
24V DC
~
~
P24
M
~
~
24V
<1>
<1>
<1>
X427
B4100
B4120
B4101
B4121
B4102
B4122
B4103
B4123
B4104
B4124
B4105
B4106
B4107
B4108
B4109
B4125
B4126
B4127
B4128
B4129
n699.01
Supply for the
SCI1 board
=Supply of binary
inputs via SCI1
=external supply
of binary inputs
Reference point for
binary inputs 1 to 5
Reference point for
binary inputs 6 to 10
SCB1 with SCI1 as slave 1: binary inputs
SCI slave 1
Binary input 1
Binary input 2
Binary input 3
Binary input 4
Binary input 5
Binary input 6
Binary input 7
Binary input 8
Binary input 9
Binary input 10
Supply for
binary inputs
(optional)

Table of Contents

Related product manuals