EasyManua.ls Logo

SLE SLE5000 Model J - Modification 1 (MOD1)

SLE SLE5000 Model J
344 pages
Print Icon
To Next Page IconTo Next Page
To Next Page IconTo Next Page
To Previous Page IconTo Previous Page
To Previous Page IconTo Previous Page
Loading...
Page 298 (Model J)
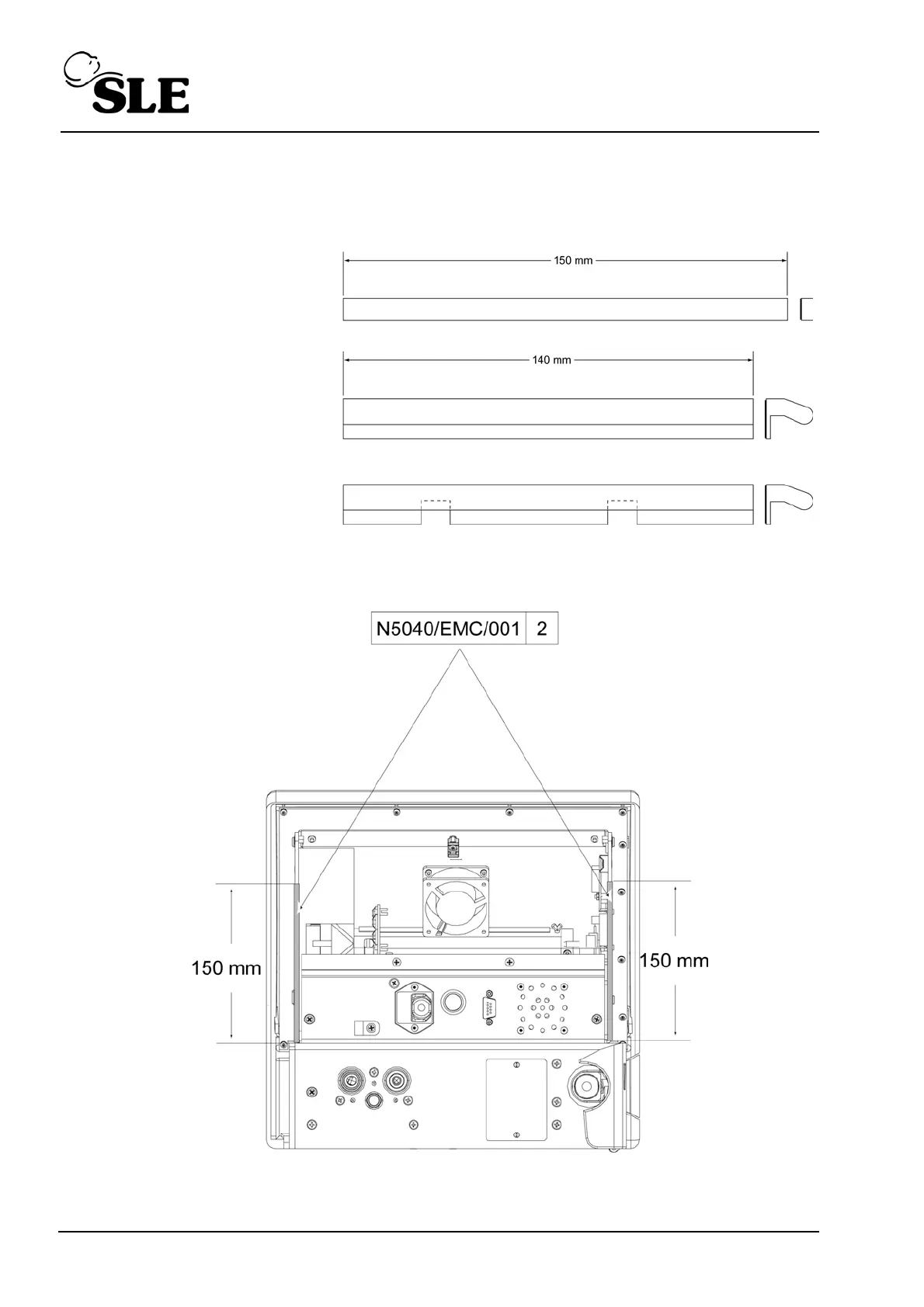
34.8 Modification 1 (MOD1)
Modification 1 (MOD1) consist of the application of four foam EMC strips.
Step 23 Identification of EMC strips.
Step 24 Prepare the area where the strip is to be applied by cleaning with alcohol. Apply
the first strip N5040/EMC/001 to the location indicated in the illustration.
Part Nº: N5040/EMC/001 Qty 2
Part Nº: L5040/EMC/001 Qty 1
Part Nº: L5040/EMC/002 Qty 1

Table of Contents

Related product manuals