EasyManua.ls Logo

Yanmar B95W - Lateral Parallel Adjustment; Articulated Boom - Excavators Adjusted

Yanmar B95W
310 pages
Print Icon
To Next Page IconTo Next Page
To Next Page IconTo Next Page
To Previous Page IconTo Previous Page
To Previous Page IconTo Previous Page
Loading...
B95W
Technical data
276 / 306
9
09_Technische Daten_en.fm - V1.0 - 1.8.17
29
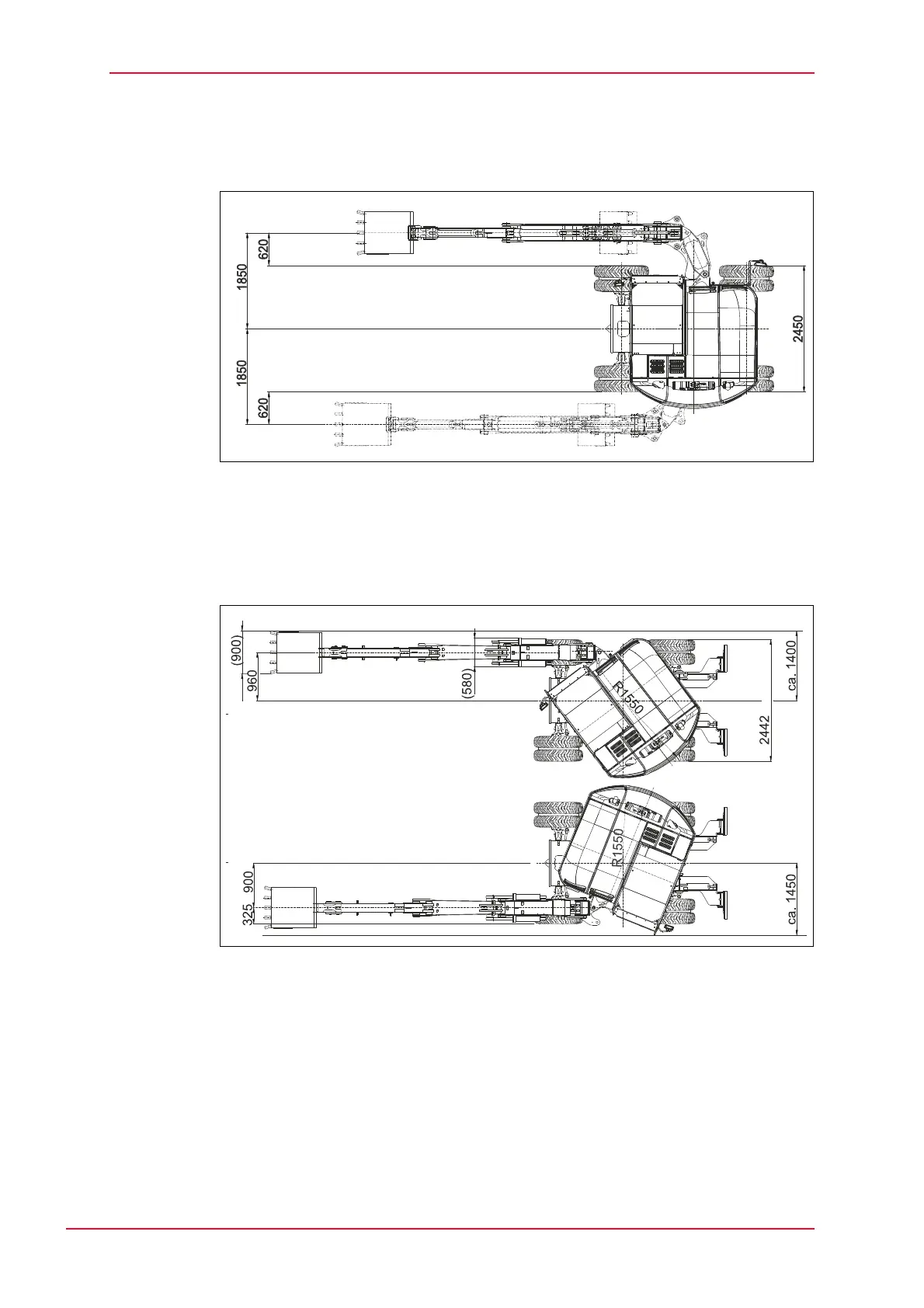
9.1.3 Lateral parallel adjustment
Fig. 9-6 Lateral parallel adjustment - adjustable boom
9.1.4 Articulated boom - excavators adjusted
Fig. 9-7 Articulated boom - excavators adjusted

Table of Contents

Related product manuals