EasyManua.ls Logo

YASKAWA SGM H Series - Page 57

YASKAWA SGM H Series
615 pages
To Next Page IconTo Next Page
To Next Page IconTo Next Page
To Previous Page IconTo Previous Page
To Previous Page IconTo Previous Page
Loading...
2 Selections
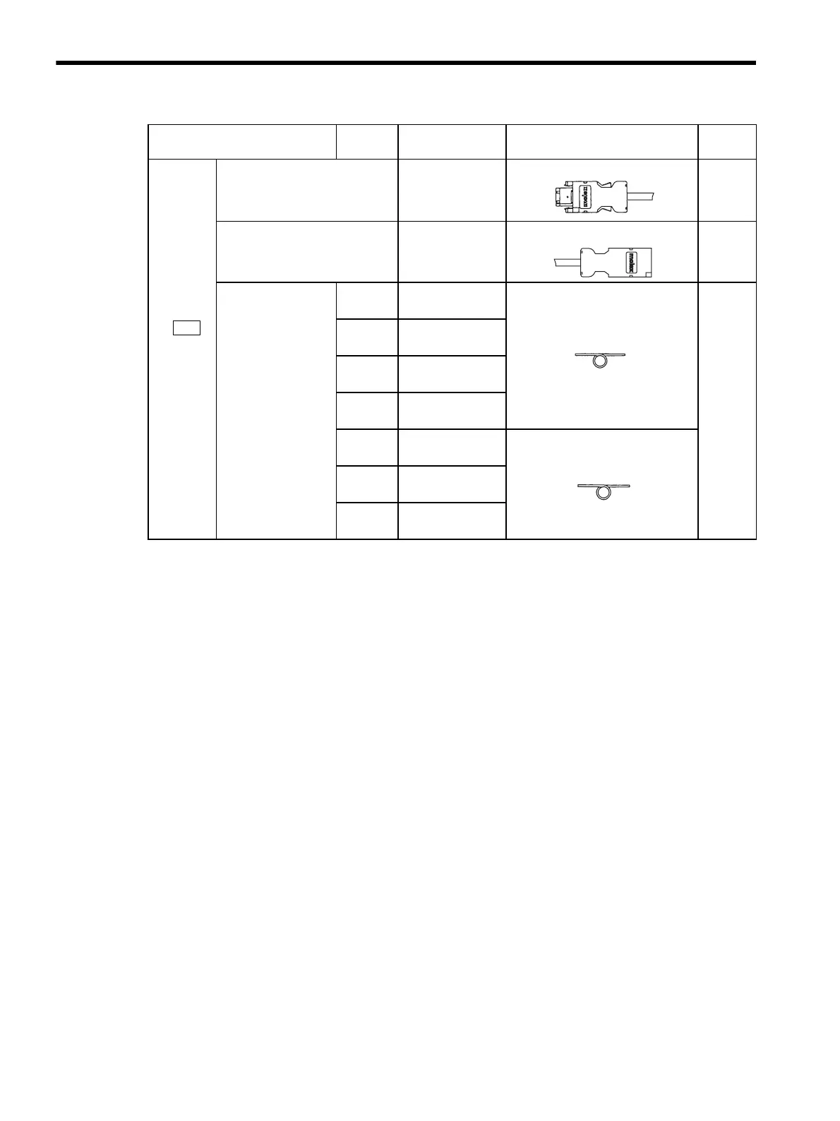
2.5.1 Cables for SGMAH and SGMPH Servomotors
2-20
c
Encoder
Cable
(Cont’d)
SERVOPACK end
connector kit
JZSP-CMP9-1
Soldered
5.5.1
Encoder end connector kit JZSP-CMP9-2
Soldered
5.4.3
5.4.5
5.5.1
Cables
5 m
(16.4 ft)
JZSP-CMP09-05
5.5.1
10 m
(32.8 ft)
JZSP-CMP09-10
15 m
(49.2 ft)
JZSP-CMP09-15
20 m
(65.6 ft)
JZSP-CMP09-20
30 m
(98.4 ft)
JZSP-CMP19-30
40 m
(131.2 ft)
JZSP-CMP19-40
50 m
(164.0 ft)
JZSP-CMP19-50
Name Length Type Specifications
Refer-
ence
CN2
20 m (65.6 ft) max.
50 m (164.0 ft) max.
Artisan Technology Group - Quality Instrumentation ... Guaranteed | (888) 88-SOURCE | www.artisantg.com

Table of Contents

Related product manuals