EasyManua.ls Logo

Canon PC430 - Outline

Canon PC430
306 pages
Print Icon
To Next Page IconTo Next Page
To Next Page IconTo Next Page
To Previous Page IconTo Previous Page
To Previous Page IconTo Previous Page
Loading...
COPYRIGHT © 1998 CANON INC. CANON PC400/420/430,FC200/220 REV.0 JAN.1998 PRINTED IN JAPAN (IMPRIME AU JAPON)
CHAPTER 5 PICK-UP/FEEDING SYSTEM
5-1
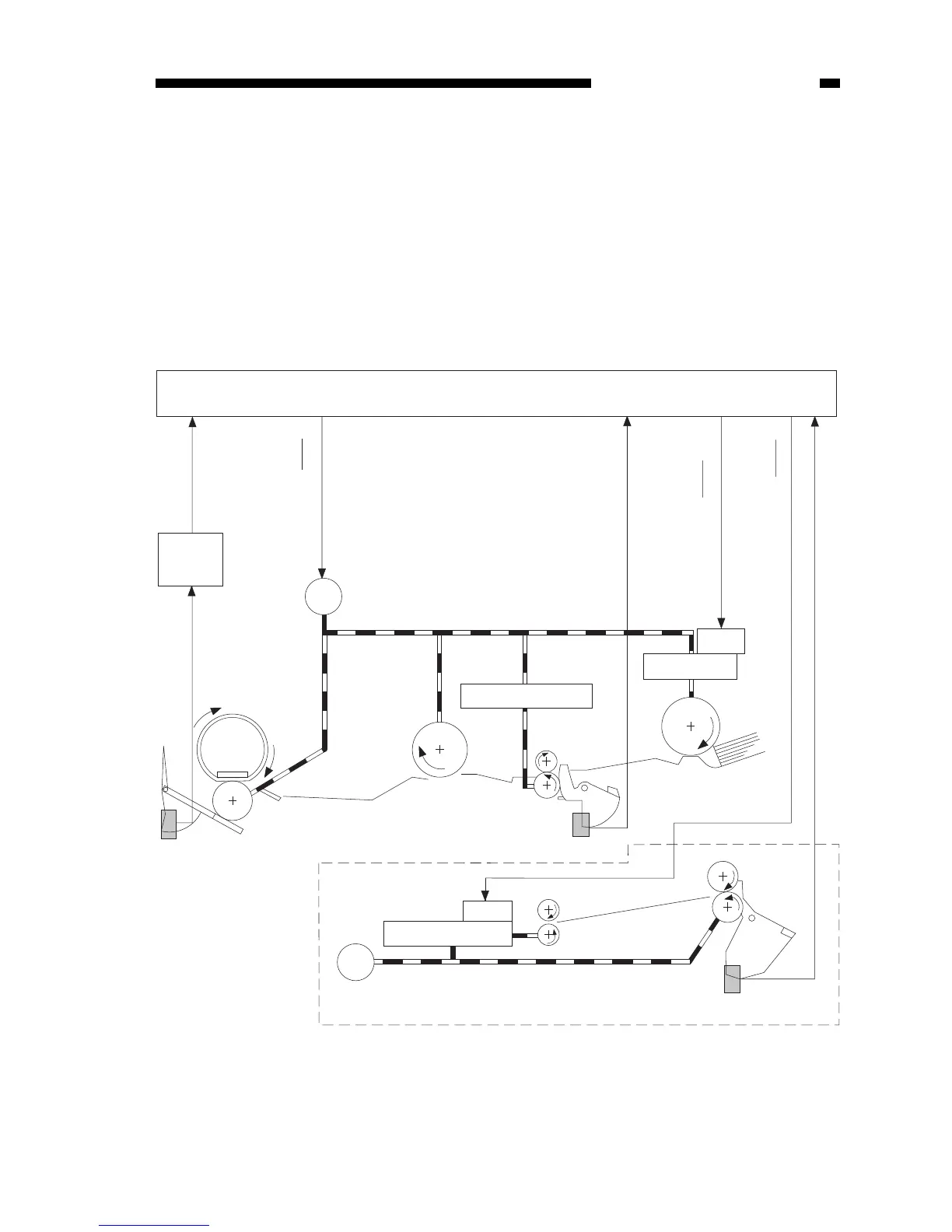
I. OUTLINE
The pick-up roller starts to rotate when the Copy Start key is pressed in the case of
the PC420/430/FC220 and when paper is inserted, i.e., in response to the activation of
the pick-up sensor (Q131), in the case of the PC400/FC200.
The copy paper is controlled by the registration roller so that its leading edge
matches that of the image on the photosensitive drum; the paper is then moved to the
transfer, separation, and fixing assemblies before it reaches the copy tray.
The delivery of copy paper is monitored by the delivery sensor (Q801); if copy paper
fails to reach or move past the sensor, the copier identifies the condition as a jam and
flashes ‘Jam’ on the control panel.
Figure 5-101
Registration solenoid drive command (RGSD)
Pick-up sensor signal
M1
M1
DC controller/DC power supply PCB
Control
panel
PCB
Pick-up
solenoid
SL1
SL1
Main motor
Delivery
sensor
(Q801)
Fixing
assembly
Photo-
sensitive
drum
Pick-up sensor
(Q131)
Registration
roller
Pick-up clutch*
Pick-up
roller
Registration clutch*
Pick-up
roller
Main motor
Registration
solenoid
Registration roller
Pick-up sensor (Q131)
(PC400/FC200)
*Spring clutch
Main motor drive
command (MMD)
Pick-up solenoid drive
command (PUSD)
Delivery sensor
signal
Pick-up sensor signal
Registration clutch*

Table of Contents

Other manuals for Canon PC430

Related product manuals