EasyManua.ls Logo

Canworld CDE360-2S0R7 - Terminals Wiring Diagram of the AC Drive

Default Icon
267 pages
Print Icon
To Next Page IconTo Next Page
To Next Page IconTo Next Page
To Previous Page IconTo Previous Page
To Previous Page IconTo Previous Page
Loading...
CDE360 Vector Control AC Drive Chapter 3 Mechanical and Electrical Installation
-28-
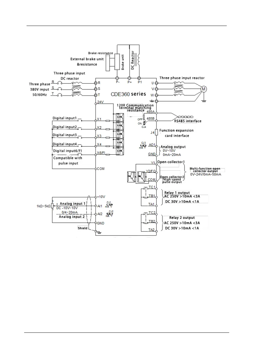
3.2.3 Terminals Wiring Diagram of the AC drive
Figure 3- 8 The wiring diagram of CDE360 Vector Control AC drive
Remarks:
1) Terminal represents terminals of the main circuit and represents terminals of the
control loop.
2) The AC drive and the motor should be reliably connected to the ground.
3) If the motor and AC drive can not be connected to the ground. Please connect the ground
terminal of the motor to the PE terminal of the AC drive.
4) AI2 jumper is mA, AI1/AO1 jumper is V.
485 balance resistor jumper in the off position

Table of Contents

Related product manuals