EasyManua.ls Logo

Danfoss VLT AutomationDrive FC 300 - Page 204

Danfoss VLT AutomationDrive FC 300
296 pages
To Next Page IconTo Next Page
To Next Page IconTo Next Page
To Previous Page IconTo Previous Page
To Previous Page IconTo Previous Page
Loading...
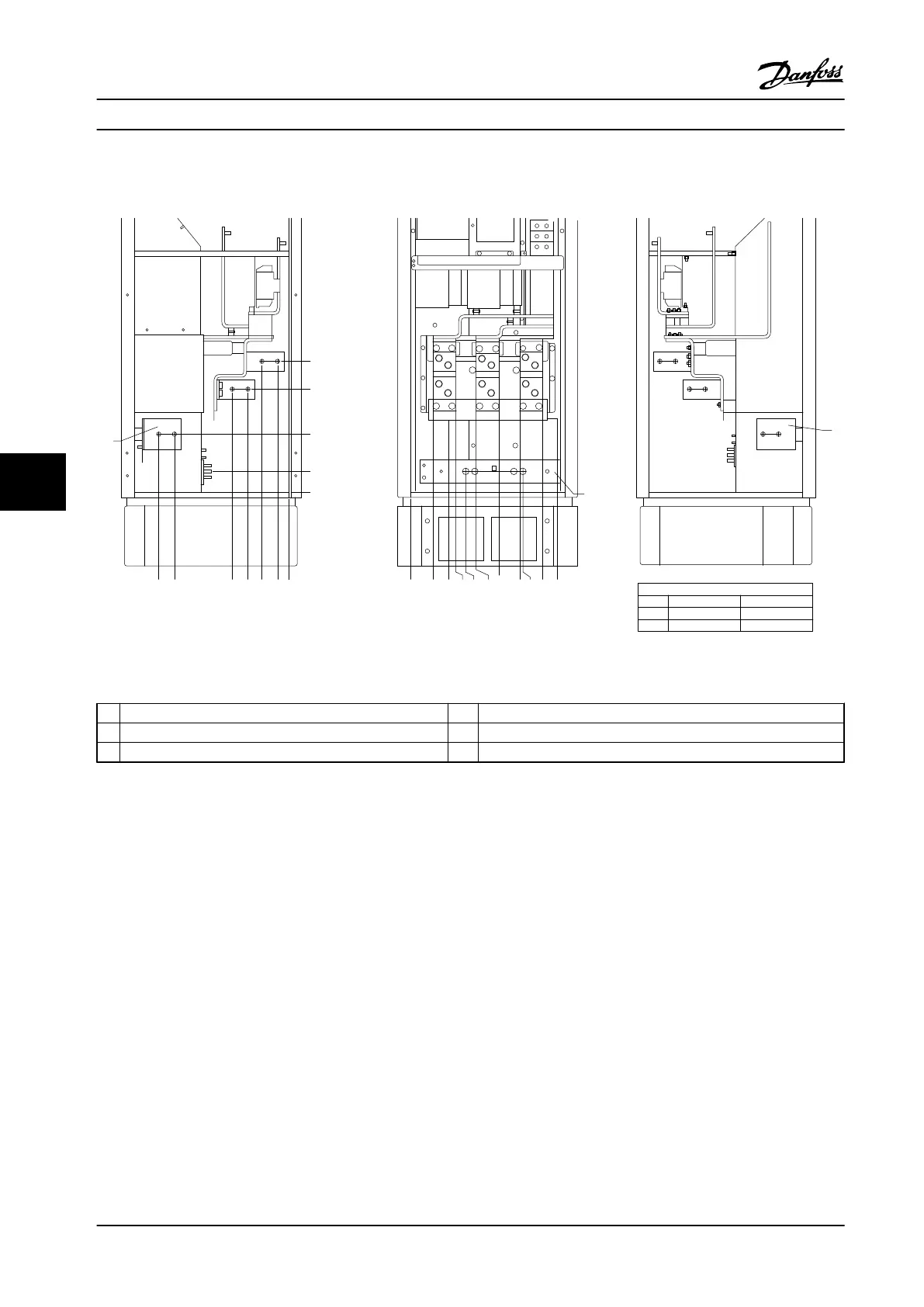
Terminal Locations - Rectifier (F1, F2, F3 and F4)
Take the following position of the terminals into consideration when designing the cable access.
74.6 [2.9]
0.0 [0.0]
125.8 [4.95]
218.6 [8.61]
293.6 [11.56]
362.6 [14.28]
437.6 [17.23]
149.6 [5.89]
486.6 [19.16]
183.4 [7.22]
373.4 [14.70]
0.0 [0.00]
70.4 [2.77]
193.9 [7.64]
343.1 [13.51]
38.1 [1.50]
0.0 [0.00]
90.1 [3.55]
136.6 [5.38]
188.6 [7.42]
B
A
435.5 [17.15]
LOAD SHARE LOCATION
DIM F1/F2 F3/F4
A 380.5 [14.98] 29.4 [1.16]
B 432.5 [17.03] 81.4 [3.20]
6
5
4
130BA848.12
CH22 CH22
R/L1 91 S/L2 92
FASTENER TORQUE: M8 9.6 Nm (7 FT-LB)
T/L3 93
FASTENER TORQUE: M10 19 Nm (14 FT-LB)
FASTENER TORQUE: M10 19 Nm (14 FT-LB)
DC 89
FASTENER TORQUE: M10 19 Nm (14 FT-LB)
DC 89
CH22 CH22 CH22 CH22
CTI25MB CTI25MB
AUXAUXAUXAUXAUX
3
2
1
Figure 7.28 Terminal Locations - Rectifier. Connector Plate is 1.65 in [42 mm] below .0 Level.
1
Left Side 4 Load share Terminal (-)
2 Front Side 5 Ground bar
3 Right Side 6 Load share Terminal (+)
Table 7.20 Legend to Figure 7.28
Electrical Installation Design Guide
202 Danfoss A/S © Rev. 2014-02-10 All rights reserved. MG34S222
77

Table of Contents

Other manuals for Danfoss VLT AutomationDrive FC 300

Related product manuals