EasyManua.ls Logo

FARGO electronics Pro-LX Pro-LX Laminating Card Printer/Encoder - Adjusting the Laminator

FARGO electronics Pro-LX Pro-LX Laminating Card Printer/Encoder
228 pages
Print Icon
To Next Page IconTo Next Page
To Next Page IconTo Next Page
To Previous Page IconTo Previous Page
To Previous Page IconTo Previous Page
Loading...
RESTRICTED USE ONLY Fargo Electronics, Inc.
Pro-LX Laminating Card Printer/Encoder User Guide (Rev. 5.0) 109
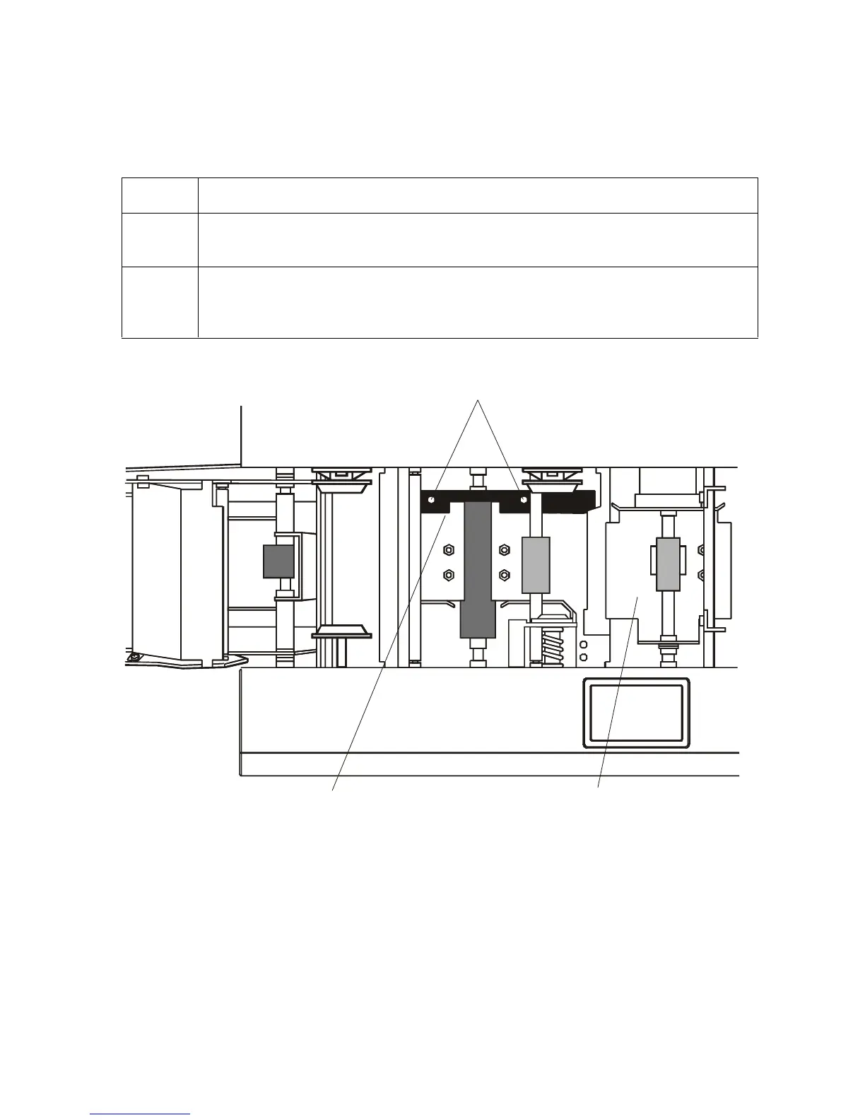
Adjusting the Laminator
Adjust the laminator's Card Guide Rail if the PolyGuard patches are being applied too closely
to or overlapping a card's top or bottom edge (as the card travels through the Printer.
Step Procedure
1 Loosen the two screws that fasten the Card Guide Rail to the Printer's main
chassis.
2 Move the Card Guide Rail slightly toward the rear of the Printer (in the opposite
direction that the patch is to move in) if the PolyGuard patch is being placed
more toward a card's top edge. See the next page).
Continued on the next page
Screws
Card Guide Rail
Card Flipping
Mechanism

Table of Contents

Related product manuals