EasyManua.ls Logo

Hitachi PB - Page 65

Hitachi PB
153 pages
Print Icon
To Next Page IconTo Next Page
To Next Page IconTo Next Page
To Previous Page IconTo Previous Page
To Previous Page IconTo Previous Page
Loading...
4-3
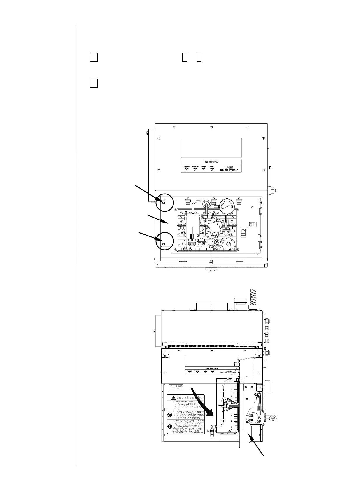
4.1.3 Approach to the parts on the rear side of the equipment
Perform the operations of 1 to 3 in “4.1.2 Approach to the parts on the
front side of the equipment”.
Remove the fixing screws (2 pieces) of the unit door and open the unit
door.
"Caution" Take care not to cause the plumbing tube to be caught.
Unit door
Unit door
Fixing screw
Fixing screw

Table of Contents

Related product manuals