EasyManua.ls Logo

IAI ROBO Cylinder RCP6

IAI ROBO Cylinder RCP6
147 pages
To Next Page IconTo Next Page
To Next Page IconTo Next Page
To Previous Page IconTo Previous Page
To Previous Page IconTo Previous Page
Loading...
125
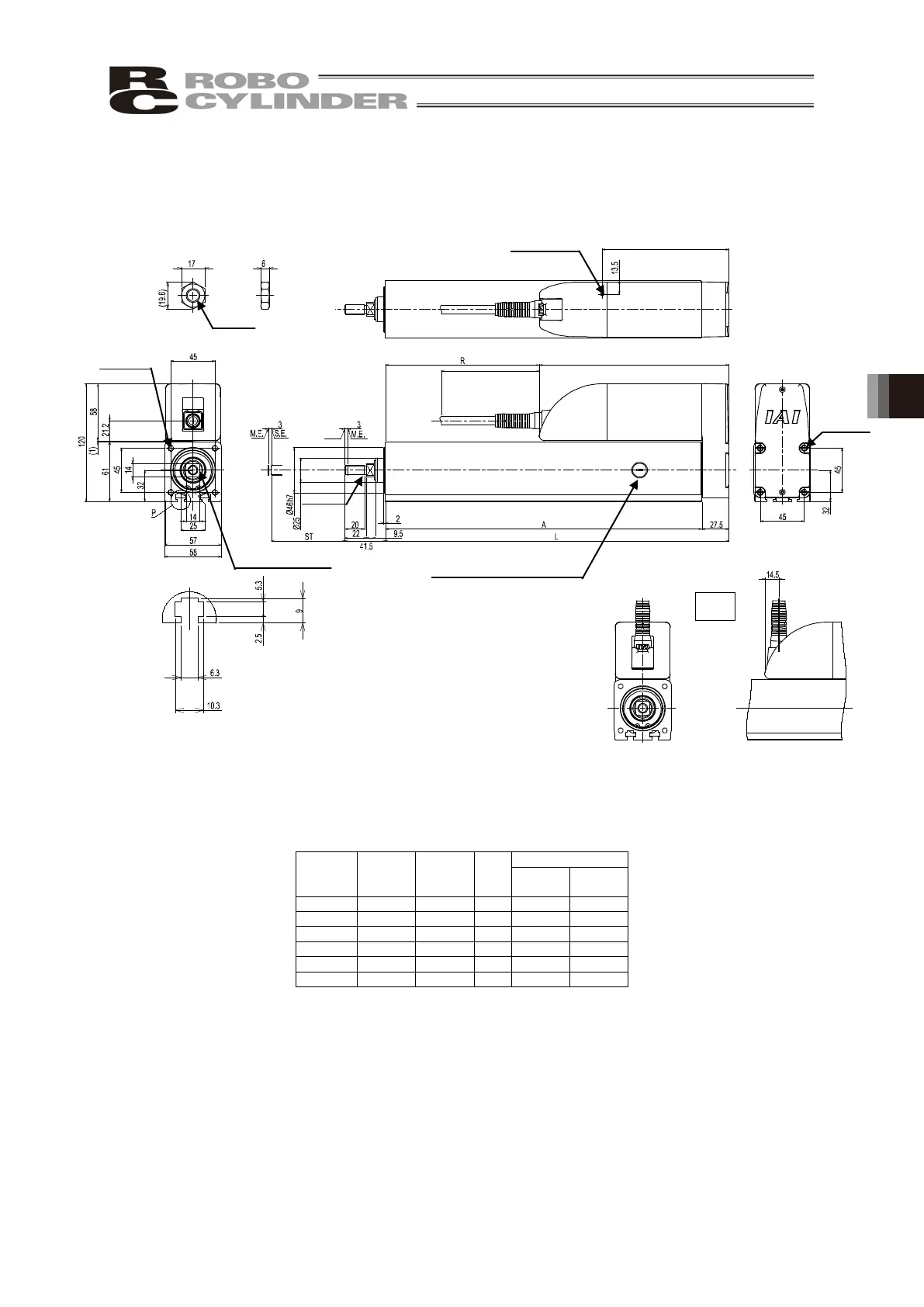
6. External Dimensions
6.13 Standard Specification RCP6-RA6R Top Side-Mounted (Model: MT)
ST : Stroke
M.E. : Mechanical End
S.E. : Stroke End
Stroke
L A R
Mass [kg]
W/o
Brake
With
Brake
50
200
172.5
6.9
2.8
2.9
100
250
222.5
56.9
3.2
3.3
150
300
272.5
106.9
3.6
3.7
200
350
322.5
156.9
4.0
4.1
250
400
372.5
206.9
4.4
4.5
300
450
422.5
256.9
4.8
4.9
M10X1.25
4-M6
Depth 12
Cable Exit Direction (Optional)
Detailed View P
Scale 2 : 1
129 (The same applies to the
one with standard brake)
Enclosed
hexagonal nut
Maintain it more
than 100
CJO
Outward
Home
The angle of the width
across flat is undefined.
M10X1.25
Greasing Port (ø5 hole)
(The same applies to the other side)
M3 Depth 4
(Ground
connection)
193.1 (The same applies to the one
with standa
rd brake)
4-M6
Depth 12

Table of Contents

Related product manuals