EasyManua.ls Logo

IBM System x3750 M4 - Page 269

IBM System x3750 M4
882 pages
Print Icon
To Next Page IconTo Next Page
To Next Page IconTo Next Page
To Previous Page IconTo Previous Page
To Previous Page IconTo Previous Page
Loading...
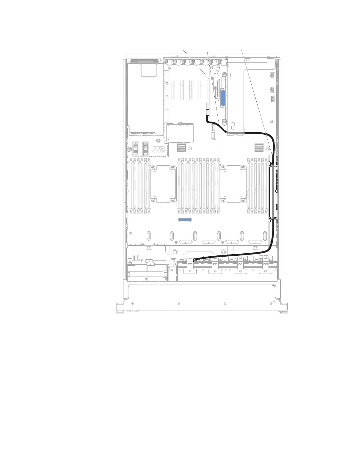
SAS cable guideAdapter
SAS signal
cable
8. Replace the cover (see “Replacing the server top cover” on page 227).
9. Reconnect the power cord and any cables that you removed.
10. Slide the server in the rack.
11. Turn on the peripheral devices and the server.
Chapter 6. Removing and replacing components 251

Table of Contents

Other manuals for IBM System x3750 M4

Related product manuals