EasyManua.ls Logo

KI Unite Panel System - Page 41

Default Icon
78 pages
Print Icon
To Next Page IconTo Next Page
To Next Page IconTo Next Page
To Previous Page IconTo Previous Page
To Previous Page IconTo Previous Page
Loading...
Unite
®
Panel System - Gallery Panel Installation
Assembly Instructions
Assemble units as described herein only. To do otherwise
may result in instability. All screws, nuts and bolts must be
tightened securely and must be checked periodically after
assembly. Failure to assemble properly, or to secure parts
may result in assembly failure and personal injury.
41
Gallery Panel Divider
Intersection Post Installation
(cont.)
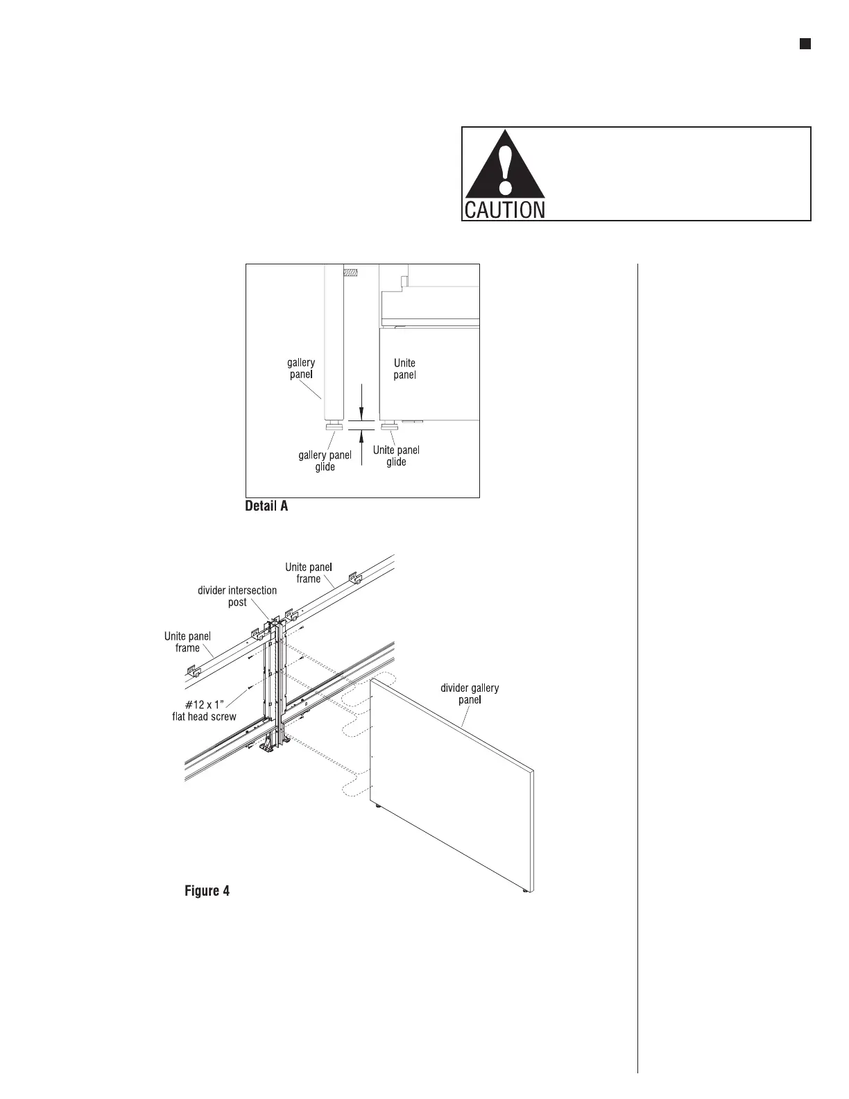
Note: Divider gallery panels ship
with pre-assembled glides at both
bottom ends. The only hardware
required for installation is #12 x 1”
flat head screws
Divider gallery panels are
non-handed and can install on
either side of the Unite panel run.
Each side can have a different height
and width divider panel.
5. To ease installation, pre-adjust
glides by measuring the distance
between the bottom of the Unite
trim, down to the floor. Extend the
gallery panel glides this distance
(Detail A).
6. Next, slip the divider panel end
with the pre-drilled holes into
the divider intersection post
(Figure 4). Make sure the
counter-sunk holes in the divider
intersection post align with the
pre-drilled holes in the panel
(Figure 4).
7. Install #12 x 1” flat head screws
through all available holes of the
post, and into the panel on both
sides. Do not over-tightened
which could strip threads in the
particle board.
8. Check to ensure the outer-most
glide has the most pressure from
the weight of the panel. This will
help keep the panel secure and
stable.
9. Before installing panel tiles
or base covers to Unite panel
frames, see next section page 42,
which covers trim installation.

Table of Contents

Related product manuals