EasyManua.ls Logo

KI Unite Panel System - Gallery Panel Installation; End-of-Run Dual-Sided & Single-Sided Gallery Panel Installation

Default Icon
78 pages
Print Icon
To Next Page IconTo Next Page
To Next Page IconTo Next Page
To Previous Page IconTo Previous Page
To Previous Page IconTo Previous Page
Loading...
Unite
®
Panel System - Gallery Panel Installation
Assembly Instructions
Assemble units as described herein only. To do otherwise
may result in instability. All screws, nuts and bolts must be
tightened securely and must be checked periodically after
assembly. Failure to assemble properly, or to secure parts
may result in assembly failure and personal injury.
35
End-of-Run Dual-Sided &
Single-Sided Gallery Panel
Installation
Note: Sizes for high-pressure
laminate (HPL) and
thermally-fused laminate (TFL)
gallery panel models are unique
and different. However, both HPL
and TFL gallery panels install the
same. The following instructions
apply to both HPL and TFL
models. All end-of-run gallery
panels ship with an 11-gauge
steel plate which fastens to the
inside face of the gallery panel.
Glides are pre-installed at each
bottom corner of all gallery panels.
Note: The following instructions
assume the gallery panel is the
same height as the Unite panel
run. If there is a change-of-height
between gallery or Unite panel,
additional trim will be required.
Preparation: If the installation
is new, gallery panels should be
treated the same as Unite panel
frames, and must be installed prior
to tiles and trim. In some cases, the
gallery panel functions as a return
and may act as a support for a Unite
panel run.
If the installation is a retrofit or
add-on, then Unite tiles must be
removed from the end of the Unite
panel run and set aside. The bottom
tile channel and raceway trim can
remain in place.
In either case, the Unite panel
run must be installed and leveled
per standard Unite, panel frame
installation instructions.
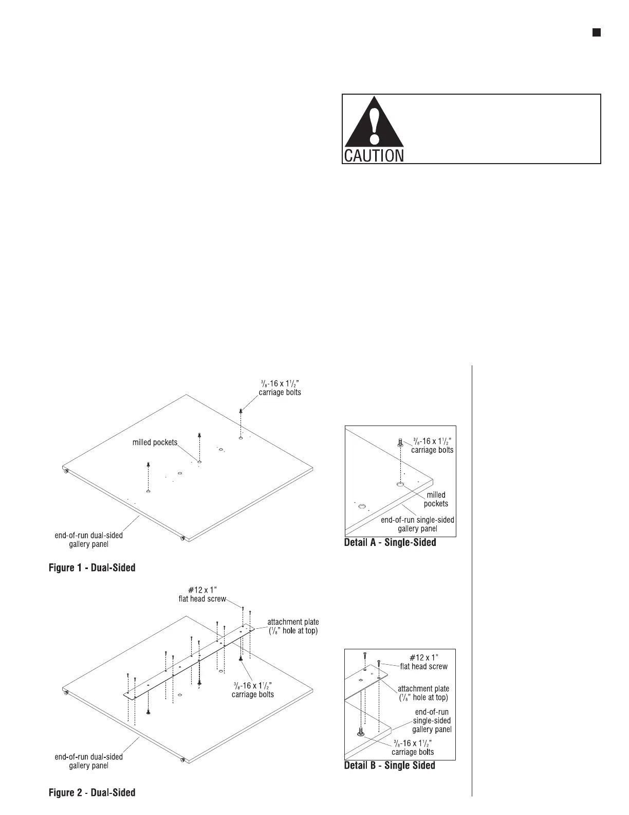
1. Lay the gallery panel onto a soft
protective surface on the floor
so the side with mounting holes
faces up. Place three
3
/
8
-16 x 1
1
/
2
” carriage bolts
loosely into the round, milled
pockets with the bolt head resting
in the pocket and the shank
pointing upward. Place one bolt
in the top hole, one in the lowest
hole and the third in any hole
near the middle of the panel as
illustrated. Not all holes will
receive bolts (Figure 1 &
Detail A).
2. Locate the top of the 11-gauge
attachment plate. The top has
a
1
/
8
” hole at the center of the
plate to identify the top. Align the
top edge of the attachment plate
with the top of the gallery panel
(opposite the bottom glides) as
illustrated. Lay the plate down
and allow the three carriage bolts
to protrude through three square
holes in the plate (Figure 2 &
Detail B).
Caution: Make sure the
shoulders of the carriage bolt are
nested in each square pocket and
that the plate lays flush against
the face of the panel.
3. Install #12 x 1” flat head screws
into each counter-sunk hole as
illustrated. Each hole should
match up with a pre-drilled
1
/
8
diameter pilot hole in the panel.
Snug each screw tight (Figure 2
& Detail B).
Caution: Do not over-torque
screws which could strip the
threads in the particle board.

Table of Contents

Related product manuals