EasyManua.ls Logo

KI Unite Panel System - Page 65

Default Icon
78 pages
Print Icon
To Next Page IconTo Next Page
To Next Page IconTo Next Page
To Previous Page IconTo Previous Page
To Previous Page IconTo Previous Page
Loading...
Unite
®
Panel System - Glass Dividers
Assembly Instructions
Assemble units as described herein only. To do otherwise
may result in instability. All screws, nuts and bolts must be
tightened securely and must be checked periodically after
assembly. Failure to assemble properly, or to secure parts
may result in assembly failure and personal injury.
65
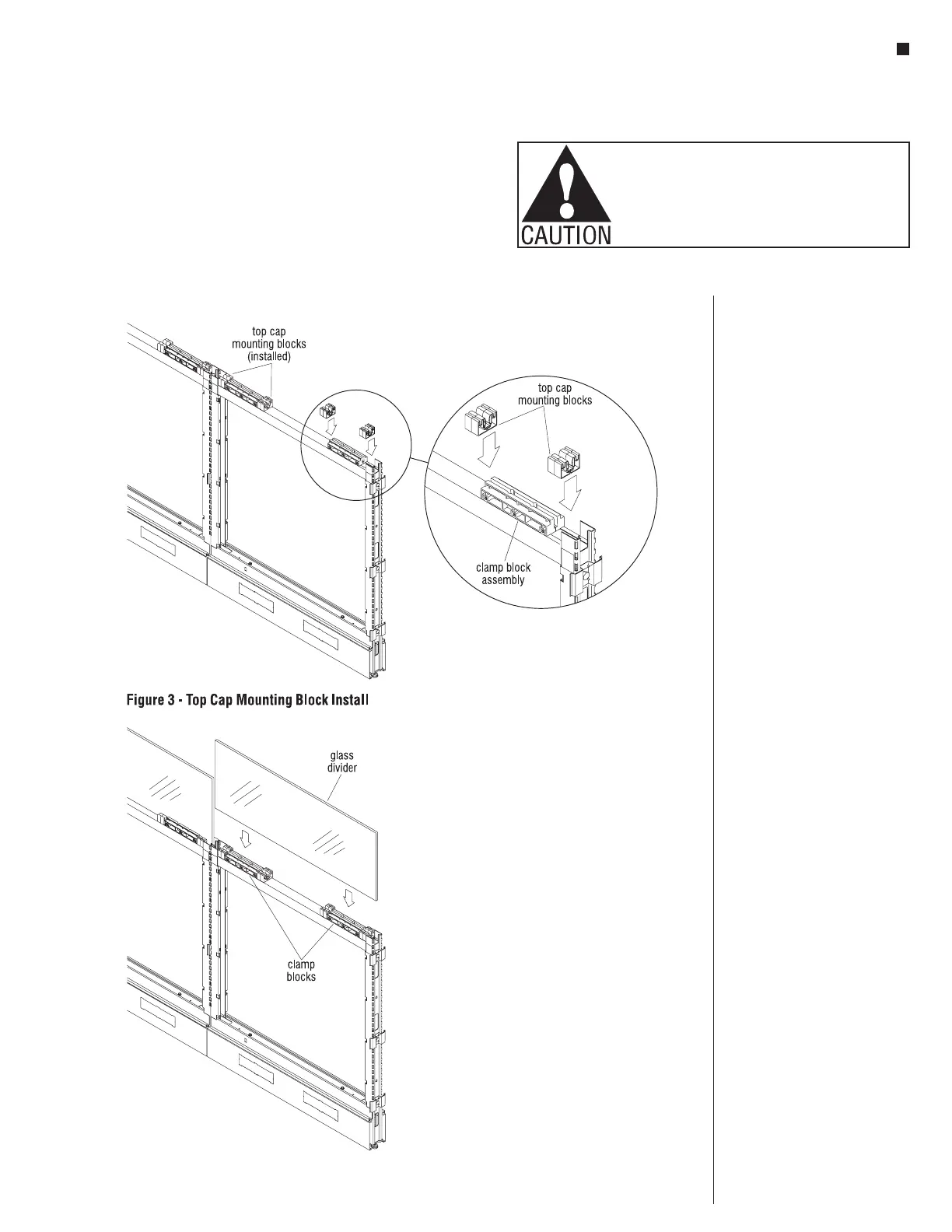
4. Position a top cap mounting block
at each end of the clamp block
assembly at both clamp block
assembly locations on top of the
panel frame (Figure 3).
5. Carefully insert the glass divider
into the clamp blocks. Center the
glass on the panel from
end-to-end and tighten the six
Phillips screws (three screws per
clamp block) to secure the glass
with the clamp blocks. Do not
over-tighten the screws.
Over-tightening can damage the
glass. Lastly, tighten the nuts
below the panel frame. Do not
over-tighten. Over tightening can
cause damage to the block
(Figure 4).
Note: For installation of
“panel-spanning glass dividers”
(one glass divider over two panel
frames) see Figure 6 instructions
next page.
Figure 4 - Install & Tighten Glass

Table of Contents

Related product manuals