EasyManua.ls Logo

Kollmorgen S700 Series

Kollmorgen S700 Series
166 pages
To Next Page IconTo Next Page
To Next Page IconTo Next Page
To Previous Page IconTo Previous Page
To Previous Page IconTo Previous Page
Loading...
S748-772 Instructions Manual | 9 Electrical Installation
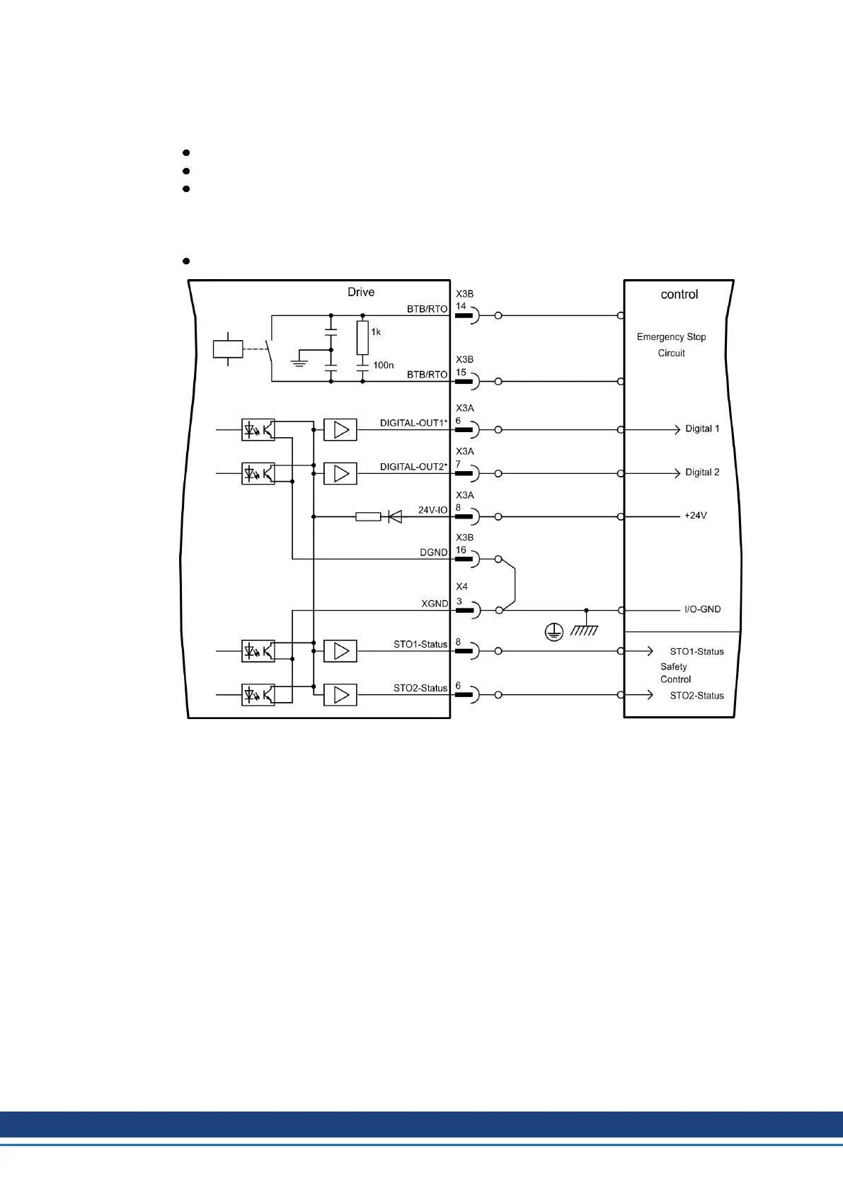
9.15.3 Digital Outputs (X3A, X3B, X4)
Technical characteristics
Power supply at terminals X3A/8 (24V-IO) and X3B/16 (DGND)
All digital outputs are floating
24V-IO : 20V DC ... 30V DC
DIGITAL-OUT1/2 : PLC compatible (IEC 61131-2 type 1), max. 100mA
STO1/2-Status : PLC compatible (IEC 61131-2 type 1), max. 100mA
BTB/RTO : Relay output, max. 30V DC or 42V AC, 0.5A
Update rate : 250 µs
* DIGITAL-OUT 1/2 must be defined as outputs using the setup software (“Digital I/O” screen
page).
102 Kollmorgen | kdn.kollmorgen.com | July 2019

Table of Contents

Other manuals for Kollmorgen S700 Series

Related product manuals