EasyManua.ls Logo

Kollmorgen S700 Series

Kollmorgen S700 Series
166 pages
To Next Page IconTo Next Page
To Next Page IconTo Next Page
To Previous Page IconTo Previous Page
To Previous Page IconTo Previous Page
Loading...
S748-772 Instructions Manual | 8 Mechanical Installation
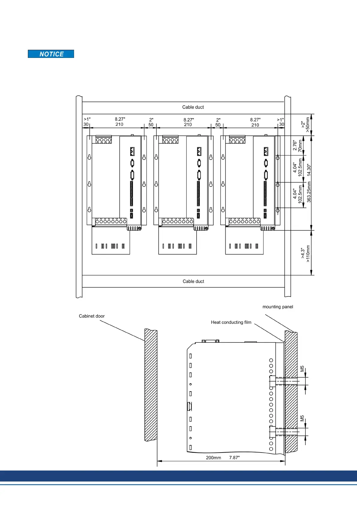
8.4.3 Backplane mounting - devices with Coldplate
These devices are not UL listed and are not EAC and Safety certified.
Material: six M5 hexagon socket screws to ISO 4762
Ambient requirements see ( # 32), mounting plate flatness: 25 μm / 100 mm
Heat conducting film to increase the heat conduction, e.g. Kunze KU-CG20.
Tool required : 4 mm Allen key
58 Kollmorgen | kdn.kollmorgen.com | July 2019

Table of Contents

Other manuals for Kollmorgen S700 Series

Related product manuals