EasyManua.ls Logo

Kollmorgen S700 Series

Kollmorgen S700 Series
166 pages
To Next Page IconTo Next Page
To Next Page IconTo Next Page
To Previous Page IconTo Previous Page
To Previous Page IconTo Previous Page
Loading...
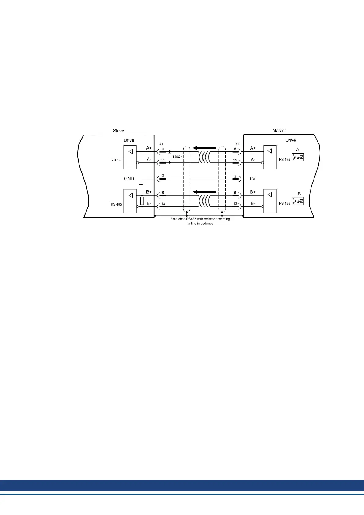
S748-772 Instructions Manual | 9 Electrical Installation
9.13.3 Master-Slave operation
9.13.3.1 Connection to an S700 master, 5V signal level (X1)
You can link two S700 amplifiers together in master-slave operation. One slave amplifier can
be controlled by the master, via the encoder output X1 ( # 97).
Master: position output to X1 (screen page "Encoder emulation")
Slave: screen page "Electronic gearing" (GEARMODE)
Frequency limit: 1.5 MHz
Example for Master-Slave operation with two S700 amplifiers:
Slave GEARMODE: 30 Master ENCMODE:9
If using SSI emulation, then the master must be set to ENCMODE 10 and the slave to
GEARMODE 25.
9.13.3.2 Connection to an S700 Master, 5V signal level (X5)
If an expansion card PosI/O or PosI/O-Monitor ( # 143) is built-in, you can use the encoder
emulation via X5.
With this interface up to 16 Slaves can be connected to one Master, because no internal ter-
mination resistors are built-in with X5. Wiring ( # 148).
96 Kollmorgen | kdn.kollmorgen.com | July 2019

Table of Contents

Other manuals for Kollmorgen S700 Series

Related product manuals