EasyManua.ls Logo

Kuka KR 6-2 - Page 111

Kuka KR 6-2
206 pages
To Next Page IconTo Next Page
To Next Page IconTo Next Page
To Previous Page IconTo Previous Page
To Previous Page IconTo Previous Page
Loading...
8 Electrical installations (continued)
111 of 206
BA KR 6, 16 F, KR C4 12.10.07 en
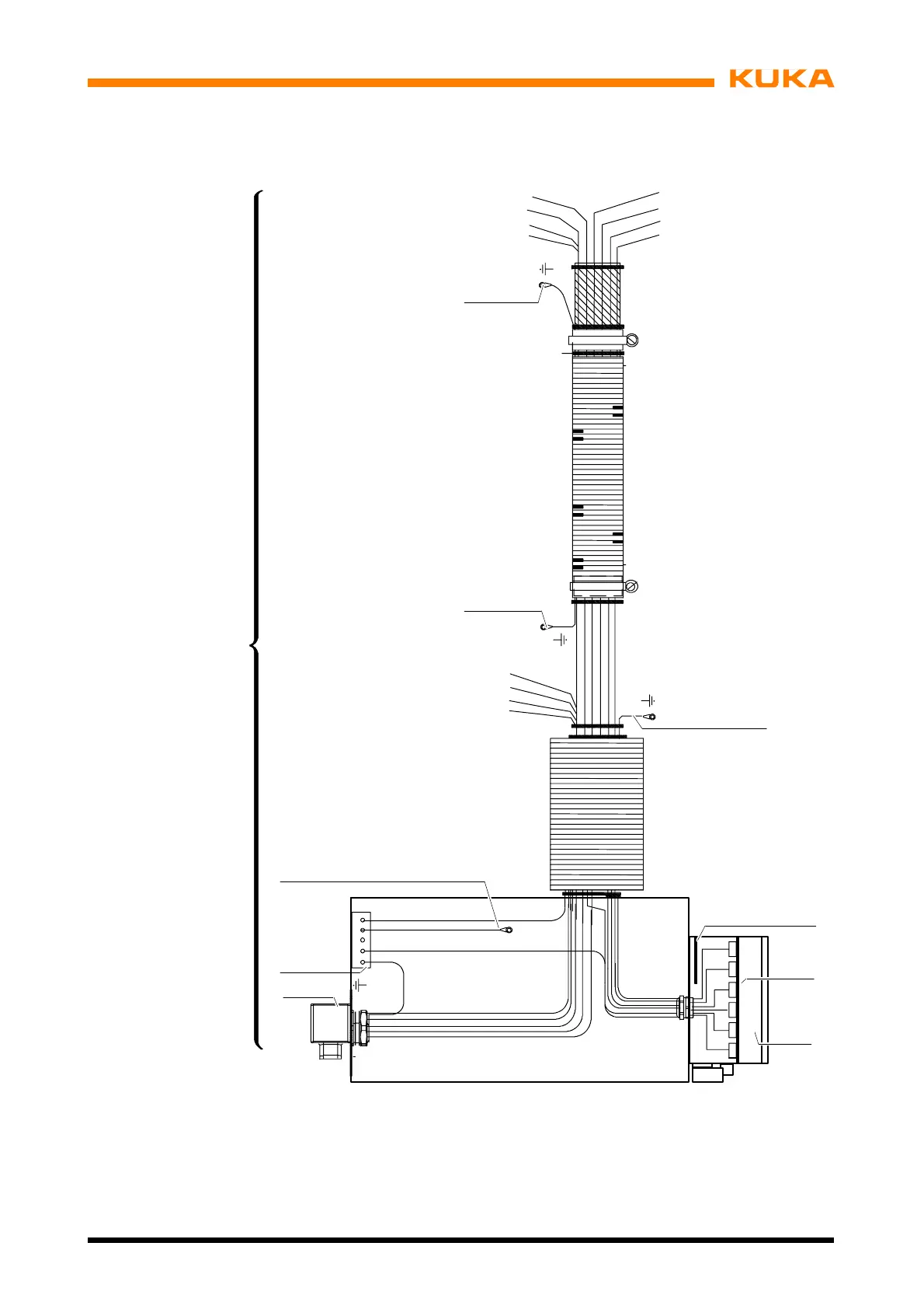
1 Cable set assembly
2 PE push--in module
3 Multi--function housing MFH
4 Protective circuit
5 Electronic Data Storage EDS
6 Resolver Digital Converter RDC
7 RDC box
X30
PE
PE
PE
PE
X31
X32
XM1
XP1
XM2
XP2
XM4
XP4
XM3
XP3
XM5
XP5
XM6
XP6
1
2
3
4
5
6
7
4
4
4
Fig. 80 Cable set assembly

Table of Contents

Related product manuals