EasyManua.ls Logo

Mazda 6 2009 - Page 76

Mazda 6 2009
156 pages
Print Icon
To Next Page IconTo Next Page
To Next Page IconTo Next Page
To Previous Page IconTo Previous Page
To Previous Page IconTo Previous Page
Loading...
BODY STRUCTURE [PANEL REPLACEMENT]
09-80B–48
Caution
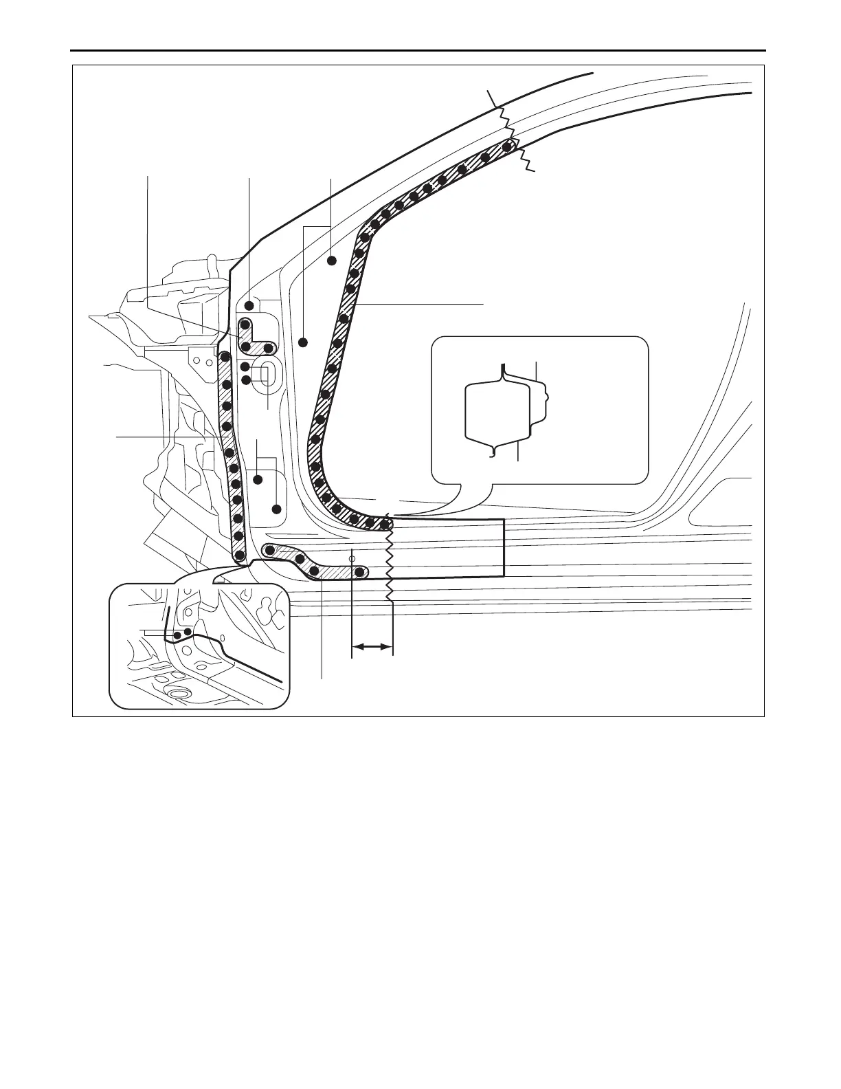
x During rough cutting, be careful not to damage the side sill reinforcement.
2. Remove the front pillar (outer).
90 mm
{3.5 in}
(A)
(A)
(B) 26
(B) 3
(B) 1
(B) 2
(B) 2
(B) 11
(B) 4
SIDE FRAME (OUTER)
SIDE SILL REINFORCEMENT
(B) 2
(B) 2
am6xub0000009
7)$HOࡍ࡯ࠫ㧞㧜㧜㧥ᐕ㧣᦬㧞㧞ᣣޓ᳓ᦐᣣޓඦ೨㧝㧝ᤨ㧠㧟ಽ

Table of Contents

Related product manuals