EasyManua.ls Logo

Mitel SMB Controller - Page 100

Mitel SMB Controller
280 pages
Print Icon
To Next Page IconTo Next Page
To Next Page IconTo Next Page
To Previous Page IconTo Previous Page
To Previous Page IconTo Previous Page
Loading...
92
F
ITTING THE COMMUNICATION SERVER
CHAPTER 4 INSTALLATION
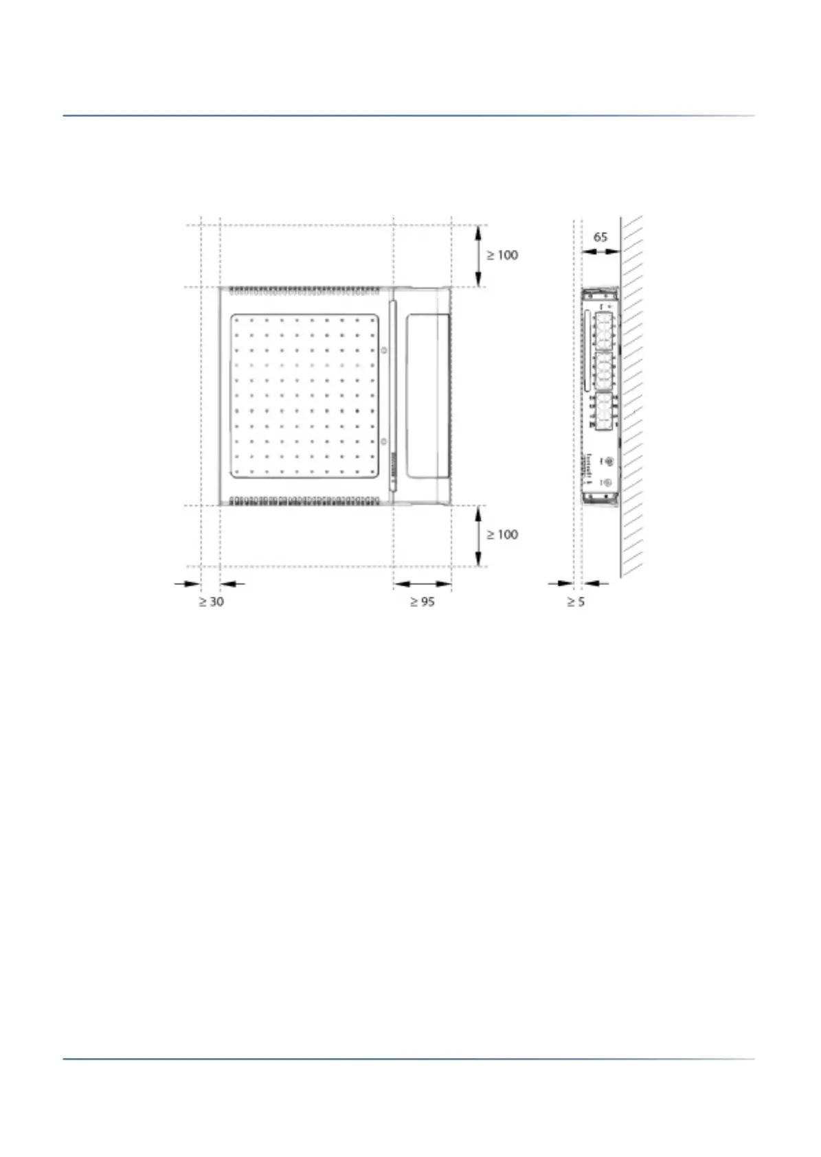
the cable cover and the possibility of suspending the communication server into and out of the
wall-mounted screws.
The two diagrams below illustrate the two wall-mounting possibilities.
Figure 4.2: Minimum distances for wall mounting (front panel facing to the right)
All dimensions in mm

Table of Contents

Related product manuals