EasyManua.ls Logo

Mitsubishi MELSEC-Q QD77MS - Page 266

Mitsubishi MELSEC-Q QD77MS
976 pages
To Next Page IconTo Next Page
To Next Page IconTo Next Page
To Previous Page IconTo Previous Page
To Previous Page IconTo Previous Page
Loading...
5 - 145
Chapter 5 Data Used for Positioning Control
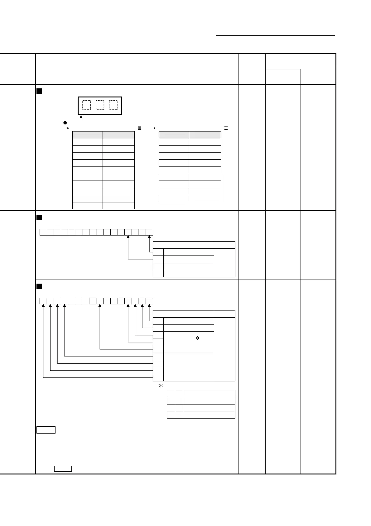
Storage buffer
memory address
Reading the monitor value
Default
value
QD77MS2
QD77MS4
QD77MS16
Monitoring is carried out with a decimal display.
Monitor value
Storage value
When SSCNET setting is SSCNET /H When SSCNET setting is SSCNET
Storage value Parameter No.
1 to 64 PA01 to PA64
64 to 128 PB01 to PB64
129 to 192 PC01 to PC64
193 to 256 PD01 to PD64
257 to 320 PE01 to PE64
321 to 384 PF01 to PF64
385 to 448 Po01 to Po64
449 to 512 PS01 to PS64
513 to 576 PL01 to PL64
Storage value Parameter No.
1 to 18 PA01 to PA18
19 to 63 PB01 to PB45
64 to 95 PC01 to PC32
96 to 127 PD01 to PD32
128 to 167 PE01 to PE40
168 to 183 PF01 to PF16
184 to 199 Po01 to Po16
200 to 231 PS01 to PS32
232 PA19
577 to 640 PT01 to PT64
0 870+100n 2470+100n
Monitoring is carried out with a hexadecimal display.
b15 b12 b8 b4 b0
b0
b3
0: OFF
1: ON
Zero point pass
Zero speed
Stored items Meaning
b4
Speed limit
b8 PID control
0000H 876+100n 2476+100n
Monitoring is carried out with a hexadecimal display.
b15 b12 b8 b4 b0
b0
b1
0: OFF
1: ON
Stored items Meaning
b7
b12
b13
b14
READY ON
Servo ON
In-position
Torque limit
Servo alarm
Servo warning
Absolute position lost
b15
b3
b2
Control mode
b3b2
00
0
1
10
Control mode
Position control mode
Speed control mode
Torque control mode
: Control mode
POINT
(1) When the forced stop of QD77MS and servo amplifier occurs, the servo
warning is turned ON. When the forced stop is reset, the servo warning is
turned OFF.
(2) Confirm the status during continuous operation to torque control mode with
"
Md.125 Servo status3".
0000H 877+100n 2477+100n
n: Axis No.-1

Table of Contents

Related product manuals