EasyManua.ls Logo

NEC PD78052 - Data Memory Addressing ( PD78 P054)

NEC PD78052
603 pages
Print Icon
To Next Page IconTo Next Page
To Next Page IconTo Next Page
To Previous Page IconTo Previous Page
To Previous Page IconTo Previous Page
Loading...
104
CHAPTER 5 CPU ARCHITECTURE
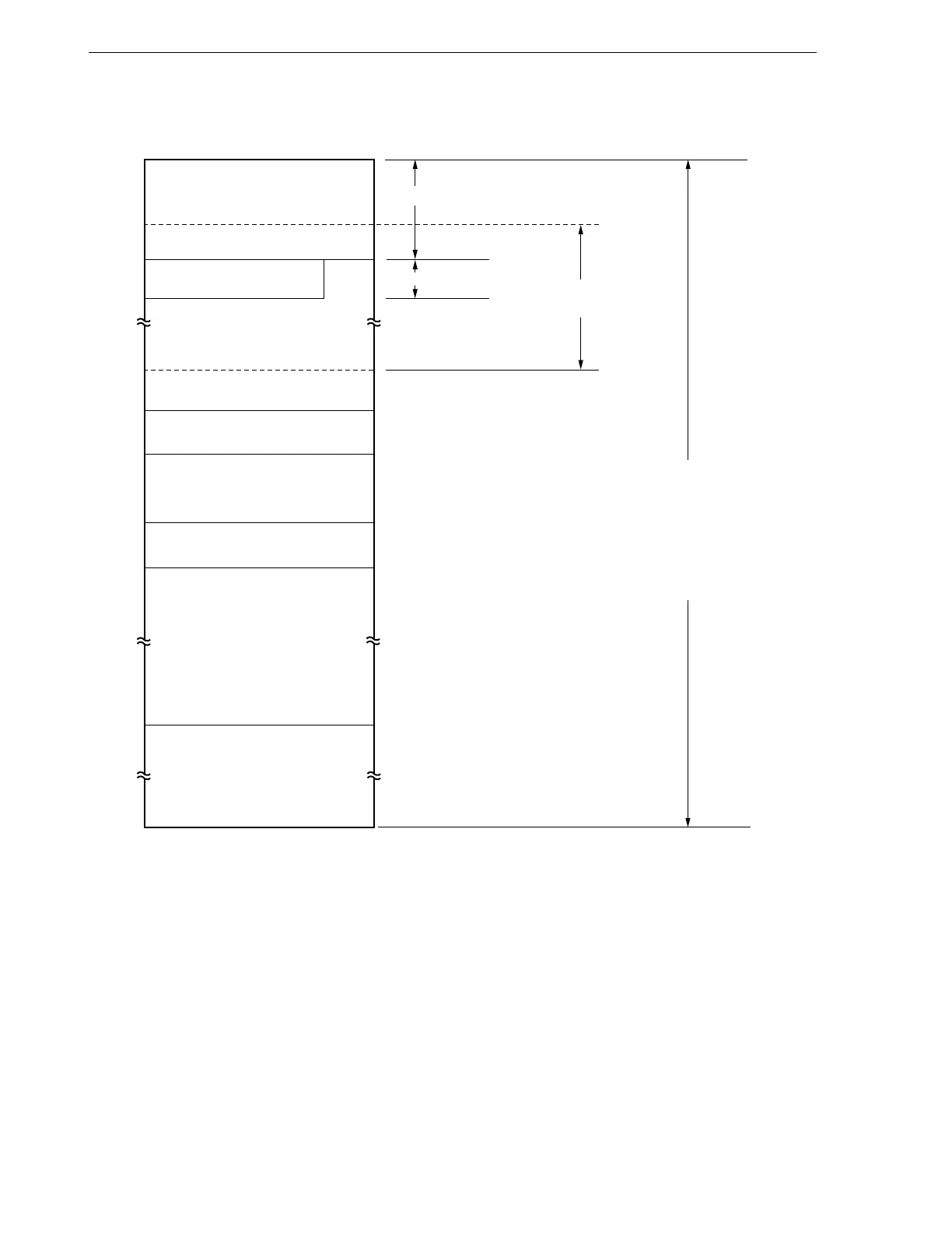
Figure 5-12. Data Memory Addressing (
µ
PD78P054)
0000H
General Registers
32 × 8 bits
Internal PROM
32768 × 8 bits
Internal Buffer RAM
32 × 8 bits
External Memory
31360 × 8 bits
Reserved
8000H
7FFFH
FA80H
FA7FH
FAC0H
FABFH
FAE0H
FADFH
FEE0H
FEDFH
FF00H
FEFFH
FFFFH
Internal High-speed RAM
1024 × 8 bits
Reserved
FB00H
FAFFH
FF20H
FF1FH
FE20H
FE1FH
Special Function
Registers (SFRs)
256 × 8 bits
SFR Addressing
Register Addressing
Short Direct
Addressing
Direct Addressing
Register Indirect
Addressing
Based Addressing
Based Indexed
Addressing

Table of Contents

Related product manuals