EasyManua.ls Logo

NEC PD78052 - Data Memory Addressing ( PD78058, 78058 Y)

NEC PD78052
603 pages
Print Icon
To Next Page IconTo Next Page
To Next Page IconTo Next Page
To Previous Page IconTo Previous Page
To Previous Page IconTo Previous Page
Loading...
107
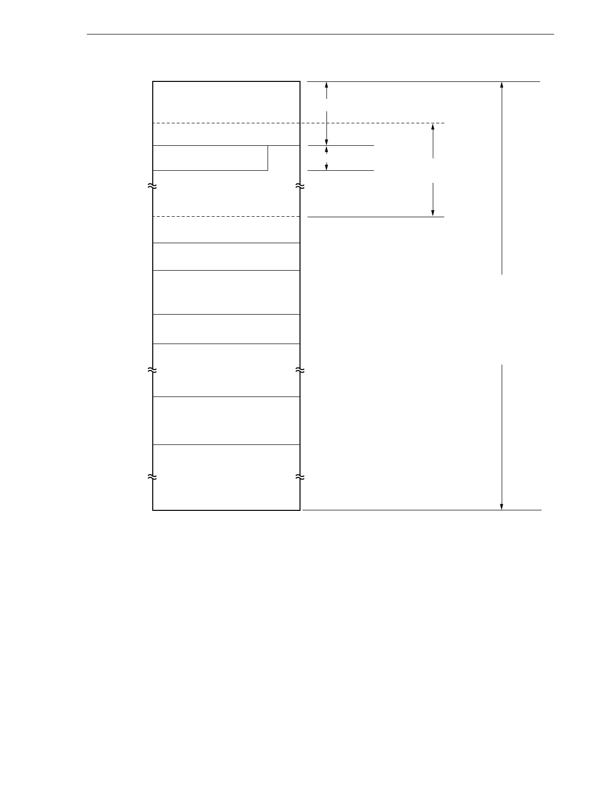
CHAPTER 5 CPU ARCHITECTURE
Figure 5-15. Data Memory Addressing (
µ
PD78058, 78058Y)
Note When internal ROM size is 60K bytes, the area F000H to F3FFH cannot be used. F000H to F3FFH
can be used as external memory by setting the internal ROM size to less than 56K bytes by the
memory size switching register.
0000H
General Registers
32 × 8 bits
Internal ROM
61440 × 8 bits
Internal Buffer RAM
32 × 8 bits
Reserved
F000H
EFFFH
F800H
F7FFH
FAC0H
FABFH
FAE0H
FADFH
FEE0H
FEDFH
FF00H
FEFFH
FFFFH
Internal High-speed RAM
1024 × 8 bits
Reserved
FB00H
FAFFH
F400H
F3FFH
FF20H
FF1FH
FE20H
FE1FH
Special Function
Registers (SFRs)
256 × 8 bits
Internal Expansion RAM
1024 × 8 bits
SFR Addressing
Register Addressing
Short Direct
Addressing
Direct Addressing
Register Indirect
Addressing
Based Addressing
Based Indexed
Addressing
Reserved
Note

Table of Contents

Related product manuals