EasyManua.ls Logo

Nice HySecurity SlideSmart HD - Page 114

Nice HySecurity SlideSmart HD
124 pages
Print Icon
To Next Page IconTo Next Page
To Next Page IconTo Next Page
To Previous Page IconTo Previous Page
To Previous Page IconTo Previous Page
Loading...
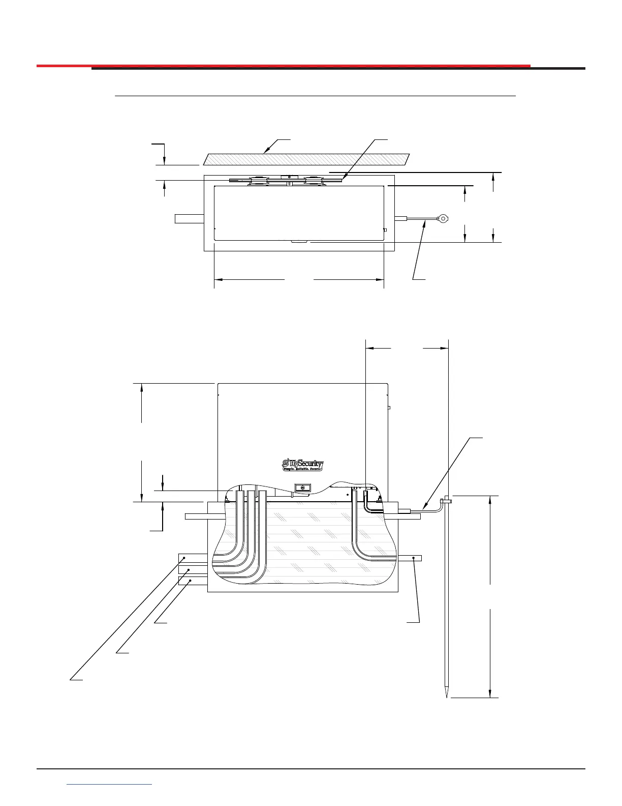
Figure 81. Operator Size, Conduit and Grounding Information
SlideSmart HD SIZE, CONDUIT AND GROUNDING INFORMATION
Route 6 AWG ground wire
through conduit & attach
to ground lug provided.
Gate Chain
proper depth
Consult local
codes for
Earth Ground
High Voltage
Low Voltage /
Communication Wires
NOTE: DRAWING IS NOT TO SCALE.
34.0”
(86.4 cm)
Operator
Width
3 Foot
91 cm)
Maximum
Conduits stubbed
approx
2
" (5.0 cm) above pad
Master/Slave Wires
(Optional)
Vehicle Loop
Control Wires
3.25” (8.3 cm)
2.50” (6.4 cm)
Chain to Gate
10”
(25 cm)
12.4”
(32 cm)
Operator
Depth
21.1”
(54 cm)
Operator
Height
INSTALLATION CONFIGURATIONS
-
APPENDIX A
SlideSmart HD Programming and Operations
114114
support.hysecurity.com

Table of Contents