EasyManua.ls Logo

Peri Trio - Mounting Ladder 240-360; Installing the Concreting Platform with Hatch at 90° inside corners

Peri Trio
128 pages
Print Icon
To Next Page IconTo Next Page
To Next Page IconTo Next Page
To Previous Page IconTo Previous Page
To Previous Page IconTo Previous Page
Loading...
50
63
62
62
64
64
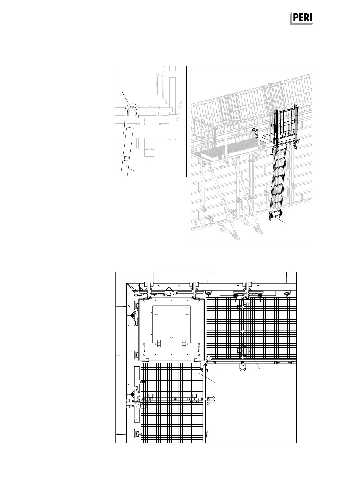
A13 Working and concreting platforms
Installing the Concreting Platform
with Hatch at 90° inside corners
Use the Concreting Platform Hatch
MX 100 x 100 (63) for 90° corners on
the internal formwork. Subsequently
mount the Concreting Platform
MX 100 x 240 (62) in both directions.
(Fig. A13.18)
Fig. A13.18
Mounting Ladder 240-360
1. Adjust the ladder (64) to the required
length and secure using a linch pin.
2. If the ladder is too long, remove the
base.
3. From below, push the ladder with the
hooks (64.1) through the openings of
the hatch cover.
J Cover of the hatch opens.
4. Push the hooks (64.1) of the ladder
over the cross beam of the concreting
platform.
(Fig. A13.16)
J Ladder is attached.
(Fig. A13.17)
Fig. A13.16
Fig. A13.17
TRIO Panel Formwork
Instructions for Assembly and Use – Standard Configuration
64.1
AuV TRIO EX.indb 50 11.10.17 09:49

Table of Contents

Related product manuals