EasyManua.ls Logo

Samsung DVM PLUS III - Page 579

Samsung DVM PLUS III
748 pages
Print Icon
To Next Page IconTo Next Page
To Next Page IconTo Next Page
To Previous Page IconTo Previous Page
To Previous Page IconTo Previous Page
Loading...
F1 F2
V-47
C
ONTROL
S
YSTEMS
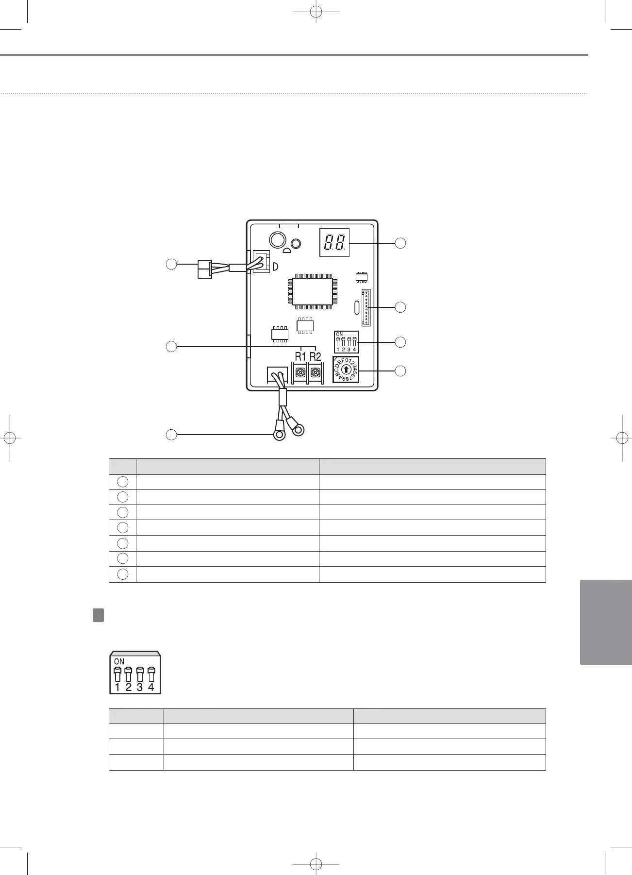
(3) Explanation of part names
No. Name Description
Communication checking 7-Segment Displays the communication state
Software update connector Using this connector, I/M software can be updated.
Option setting switches Set additional function
Address setting switch Set I/M address
Communication connector (I/M
Outdoor unit) Connect to outdoor unit (Indoor unit) F1/F2
Communication connector (I/M
Centralized controller) Connect to centralized controller R1/R2
Power connector DC12V power input connector (Connect to outdoor unit PCB)
1
2
3
4
5
6
7
1
2
3
4
5
6
7
Option switch
Switch No.
SW 1
SW 2
SW 3, 4
OFF
Manages indoor units with K10 to OFF
-
Set for software updating
ON
Manages indoor units with K10 to ON
-
Normal operation
SW1 : Only for DVM PLUS outdoor unit
SW3,4 : For software upgrade
K1 K2 K3 K4
05-2_control systems(046~081) 3/6/08 14:02 Page 47

Table of Contents

Other manuals for Samsung DVM PLUS III

Related product manuals