EasyManua.ls Logo

SEW-Eurodrive MOVIDRIVE MDA90A-0640-503-X-S00

SEW-Eurodrive MOVIDRIVE MDA90A-0640-503-X-S00
288 pages
To Next Page IconTo Next Page
To Next Page IconTo Next Page
To Previous Page IconTo Previous Page
To Previous Page IconTo Previous Page
Loading...
4
Installation
EMC-compliant installation
Operating Instructions – MOVIDRIVE
®
modular
118
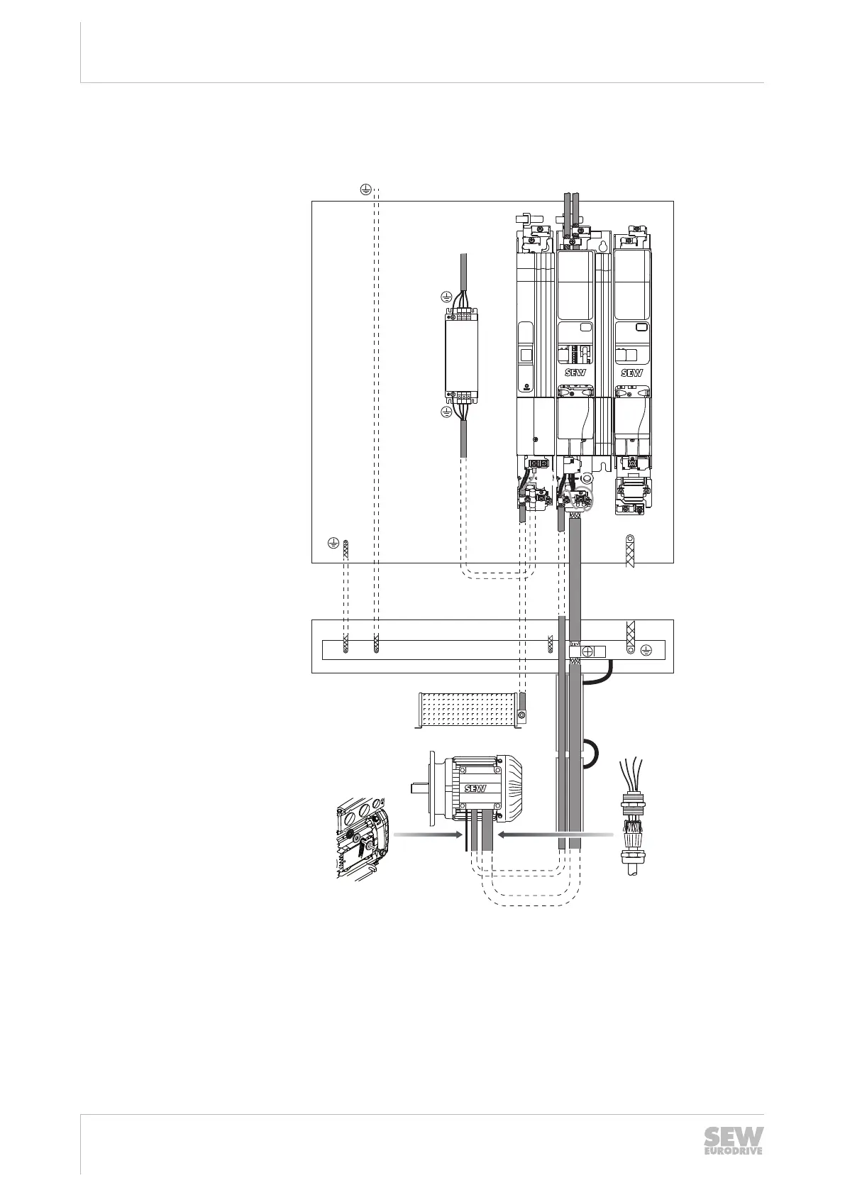
4.11 EMC-compliant installation
X31X20_1X21_1
X20_211X21_21
X15_1
X15_2
S1
S2
RUN ERR
+UZ
X4
X5
24V
GND
-UZ
+ UZ- UZ
RUN ERR
X15
X21 X20 X31
S1
S2
+UZ
-UZ
X4
+UZ-UZ
[6]
[6]
[3]
[1]
[2]
[15]
[7]
[11]
[9]
[5]
[13]
[16]
[16]
[12] [10]
[16]
[16]
[8]
[4]
[10]
19501899787
[1] Zinc-coated mounting plate [9] Braking resistor performance
[2] Line filter [10] Motor cable
[3] MDP power supply module [11] Power shield plate at the axis module
[4] PE busbar [12] Brake cable
[5] HF connection of PE busbar/mounting plate [13] Grounding clamp
[6] Supply system cable [15] Electronics shield plate
[7] Power shield plate at the power supply module [16] HF connection
[8] Braking resistor
24748536/EN – 11/2017

Table of Contents

Related product manuals