EasyManua.ls Logo

SEW-Eurodrive MOVIDRIVE MDA90A-0640-503-X-S00

SEW-Eurodrive MOVIDRIVE MDA90A-0640-503-X-S00
288 pages
To Next Page IconTo Next Page
To Next Page IconTo Next Page
To Previous Page IconTo Previous Page
To Previous Page IconTo Previous Page
Loading...
8
Technical Data
Dimension sheets of the modules
Operating Instructions – MOVIDRIVE
®
modular
221
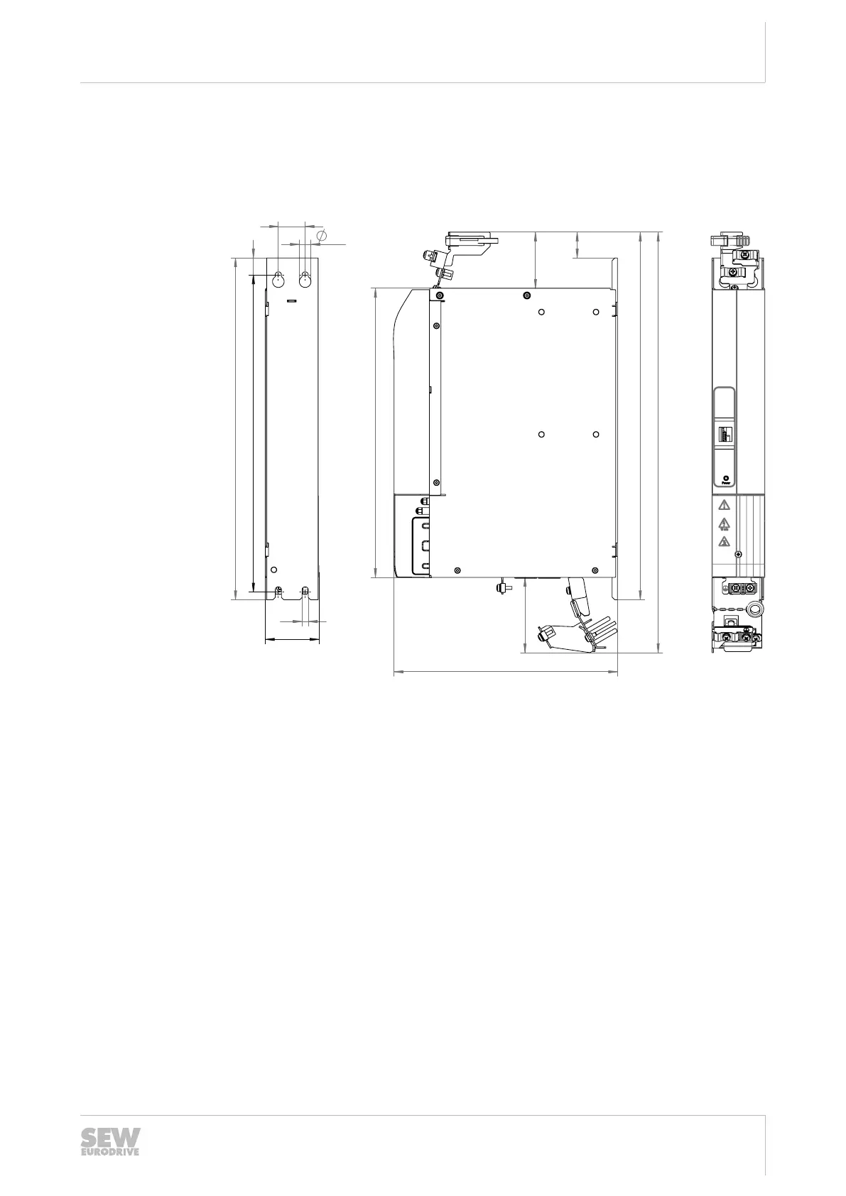
8.6 Dimension sheets of the modules
8.6.1 Dimension sheets of the power supply modules
MDP90A-0100-..
(size 1)
250
471*
29
63
411
84*
324
30
7
19
13
383
60
355
9007215213288715
24748536/EN – 11/2017

Table of Contents

Related product manuals