EasyManua.ls Logo

SEW-Eurodrive MOVIDRIVE MDA90A-0640-503-X-S00

SEW-Eurodrive MOVIDRIVE MDA90A-0640-503-X-S00
288 pages
To Next Page IconTo Next Page
To Next Page IconTo Next Page
To Previous Page IconTo Previous Page
To Previous Page IconTo Previous Page
Loading...
8
Technical Data
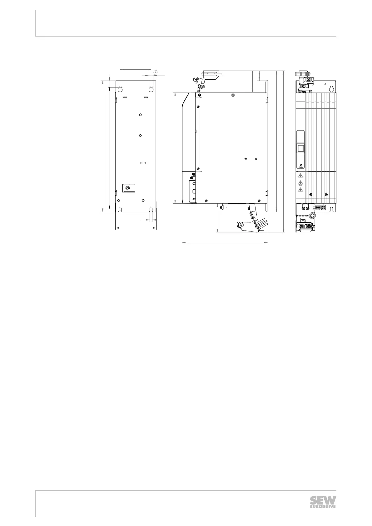
Dimension sheets of the modules
Operating Instructions – MOVIDRIVE
®
modular
222
MDP90A-0100-..-
C00 (size 1A)
29
63
250
411
471*
84*
324
383
7
90
13
19
120
355
9007215213291147
24748536/EN – 11/2017

Table of Contents

Related product manuals