EasyManua.ls Logo

SEW-Eurodrive MOVIDRIVE MDA90A-0640-503-X-S00

SEW-Eurodrive MOVIDRIVE MDA90A-0640-503-X-S00
288 pages
To Next Page IconTo Next Page
To Next Page IconTo Next Page
To Previous Page IconTo Previous Page
To Previous Page IconTo Previous Page
Loading...
8
Technical Data
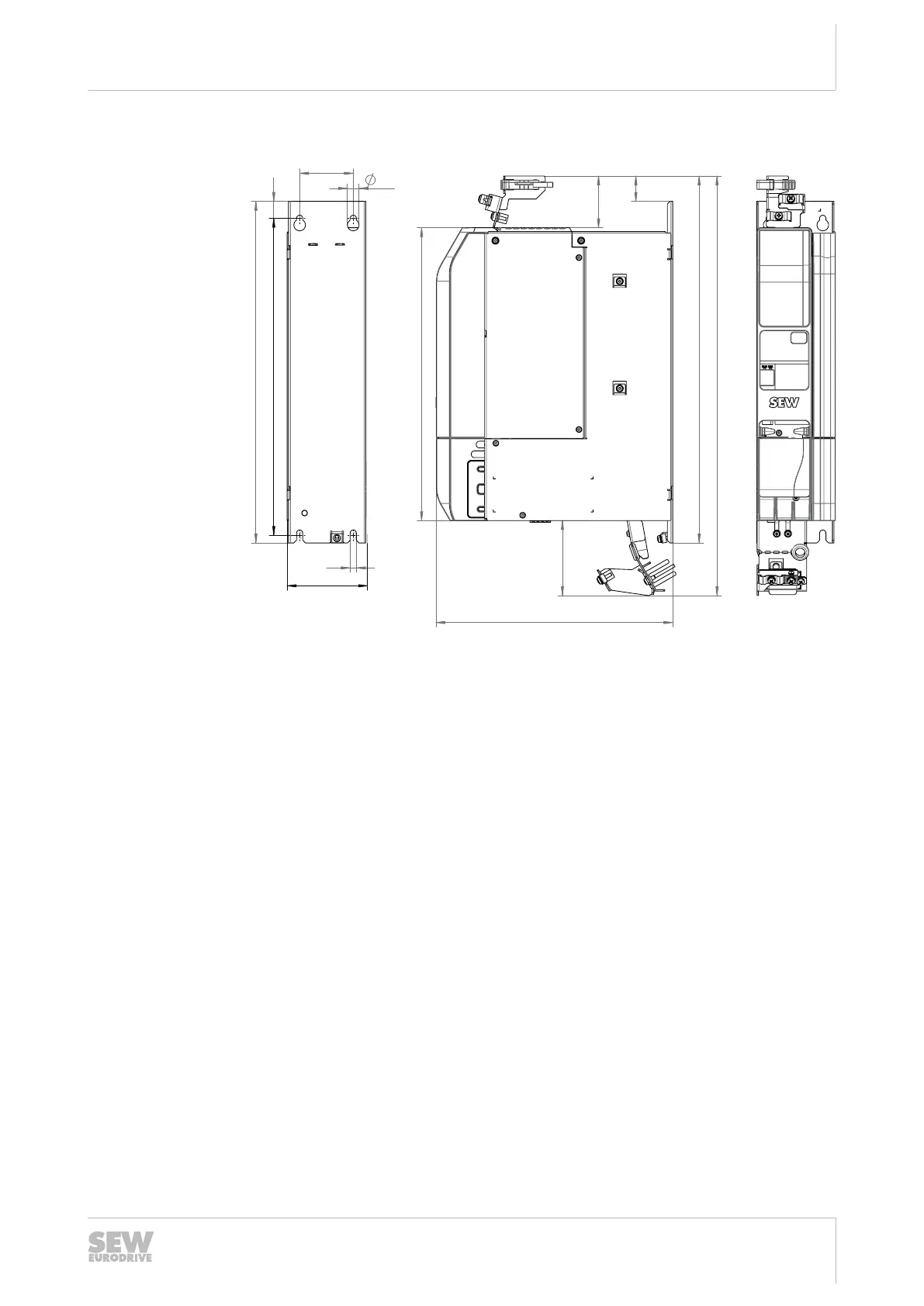
Dimension sheets of the modules
Operating Instructions – MOVIDRIVE
®
modular
227
MDA90A-0160 –
0240-.. (size 2)
28
58
84*
470*
265
411
328
19
383
60
13
7
90
355
9007215212818187
24748536/EN – 11/2017

Table of Contents

Related product manuals