EasyManua.ls Logo

SEW-Eurodrive MOVIDRIVE MDA90A-0640-503-X-S00

SEW-Eurodrive MOVIDRIVE MDA90A-0640-503-X-S00
288 pages
To Next Page IconTo Next Page
To Next Page IconTo Next Page
To Previous Page IconTo Previous Page
To Previous Page IconTo Previous Page
Loading...
8
Technical Data
Technical data of braking resistors, filters and chokes
Operating Instructions – MOVIDRIVE
®
modular
244
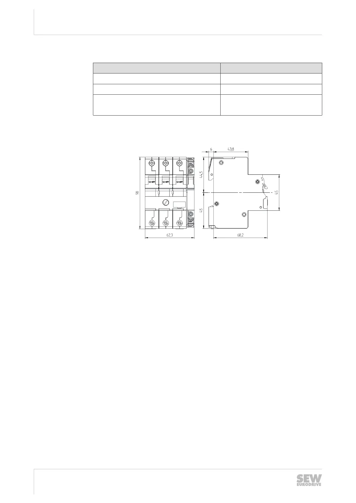
Technical data of signal contact
Specifications of the signal contacts Design
Connecting contacts 0.5 – 1.5 mm
2
Tightening torque 0.8 Nm
Switching capacity DC 5 A / DC 24 V
AC 10 A / AC 230 V
Dimension drawing
17195255435
24748536/EN – 11/2017

Table of Contents

Related product manuals