EasyManua.ls Logo

Siemens 6RA7086-6KS22

Siemens 6RA7086-6KS22
734 pages
To Next Page IconTo Next Page
To Next Page IconTo Next Page
To Previous Page IconTo Previous Page
To Previous Page IconTo Previous Page
Loading...
Function diagrams 05.05
8-6 SIEMENS AG 6RX1700-0AD76
SIMOREG DC Master Operating Instructions
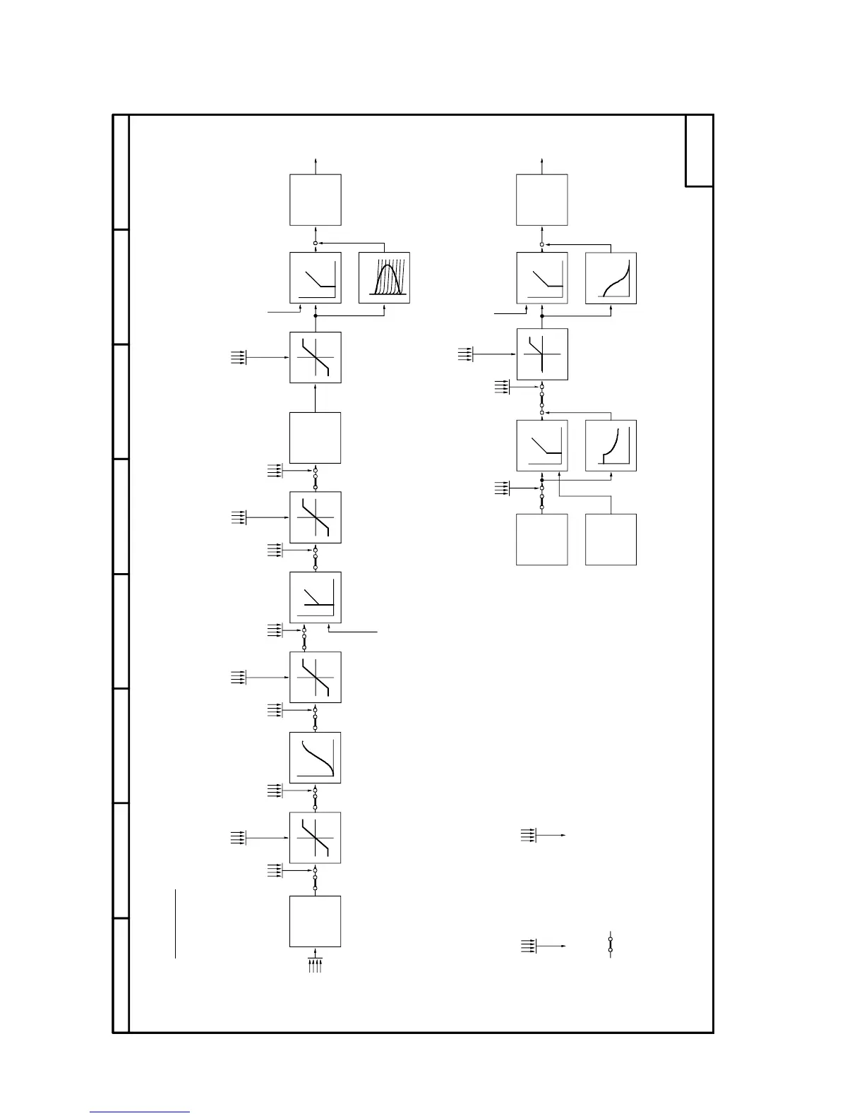
Basic functions Sheets G100 to G200
Sheet G100 Overview
87564321
abcd
- G100 -
[G110 - G130]
[G135] [G136] [G136]
[G151, G152]
[G160]
[G161]
[G162] [G163]
[G165]
[G165]
[G166] [G166]
Ramp-functiongenerator
setpoint limiting
Setpoint limiting
ramp-function generator
Ramp-function
generator
Setpoint
limiting
Setpoint limiting
speed controller
Actual value
speed controller
Speed
controller
Torque limiting
Torque limits
Current
setpoint
generation
Current limiting
Armature
current limits
Actual value
armature current
controller
Current
controller
Precontrol
Legend :
equals
a ... Analog input
b ... Serial interface
c ... Basic converter function
d ... Supplementary board
Current
controller
Current limiting
EMF controller
Field current
limits
Precontrol
Precontrol
Overview
Setpoint
processing
Armature
gating unit
Field gating
unit
Main
setpoint
Additional setpoint
before r-f generator
Additional
setpoint
Additional setpoint
speed controller
Additional
setpoint speed
controller limiting
Additional
current setpoint
Additional setpoint
before r-f generator
Additional setpoint
before r-f generator
from
= Parameterizable connection
/disconnection points
Additional setpoint
EMF controller
Additional field
current setpoint
EMF
setpoint
generation
EMF
actual value
generation
Additional
torque setpoint
Field current
actual value

Table of Contents

Related product manuals